Имоти
Имоти

Четиристаен апартамент на метри от метростанция “Ломско шосе”

Реф. №: 22622
София, Връбница 2

Общ преглед

  • 4-стаен
  • Тип имот
  • 3
  • Спални
  • 138
  • 2026
  • Година на строеж

Допълнителни детайли

  • Номер на имота: 22622
  • Цена: € 295,000
    (576,969.85 лв.)
  • Спални: 3
  • Площ: 138
  • Статус на имота: Купи

Размер на кредит

| €

2,500 €

500,000 €

Срок на кредит

| месеца

36 месеца

360 месеца

Лихвен процент

| %

2.45%

5%

Месечна вноска

ГПР %

Общо дължима сума

Действия по вписване на ипотека (Еднократно)

€20.45

Такса за проверка и анализ на обезпечението по кредита (Еднократно)

€204.52

Такса план (Месечно)

€6.13

Такса за оценка на обезпечение (Еднократно)

€120.15

Powered by Credia

Стойност на имота

€295000 / 576970 лв.

Няма данни за наемите в района.

Powered by Credia

Имаш интерес?

Свържи се
с нас

Имаш интерес?

Свържи се
с нас

Обадете се 0879900994

Описание

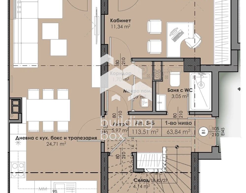
БИЛДИНГ БОКС предлага за продажба четиристаен апартамент в новострояща се жилищна сграда.

– РАЗПРЕДЕЛЕНИЕ: Жилището е със застроена площ от 113.51 кв.м. и е на две нива. Разполага с: първо ниво - антре, вътрешна стълба, склад, баня с тоалетна, коридор, мокро помещение, кабинет, дневна с трапезария и кухненски бокс; второ ниво – вътрешна стълба, коридор, две спални, баня с тоалетна.

Към жилището е предвиден двор с настилка 21,77кв.м. и озеленен двор 26,25кв.м.

 

Изложението на жилището е на изток. Апартамент 3 е разположен на 1-ви и 2-ри етаж от 9. Отоплението е на електричество – конвектори и климатици. Налични подземни паркоместа и гаражи, които могат да бъдат закупени допълнително.

– ЕТАП НА СТРОИТЕЛСТВО Акт 14

– ЛОКАЦИЯ: Жилищната сграда се намира в ж.к. Връбница, в непосредствена близост до метростанция.

Метростанция Ломско шосе – само на 50 метра

61 ОУ “Св. св. Кирил и Методий” – 200 метра

74 ОУ “Гоце Делчев” – 500 метра

супермаркет БИЛА – 500 метра

супермаркет Т-MARKET – 700 метра

Северен парк – 900 метра

супермаркет ЛИДЛ – 1 километър

Софийски Университет – 6 метро спирки

– СГРАДА: Сградата е проектирана на 9 жилищни етажа, с общо 31 бр. апартамента. Апартаментите разполагат с функционални разпределения с всекидневни и спални с голяма площ, максимална светлина и простор. Качествено строителство.

Фасада

Фасадата предстои да бъде изпълнена от силикатна мазилка и декоративна рамка от еталбонд и HPL- опасваща сградата.

Хидроизолация

Цялостна допълнителна хидроизолация на сутерена и водоплътен бетон.

Дограма

Най-висок клас алуминиева система за врати и прозорци с прекъснат термомост - Thermo Smart WP78 с троен стъклопакет 44мм.

Фоайе и общи части

Фоайе и общи части по специален интериорен проект - с вътрешно оформление от гранит, съчетан с декоративни елементи ламинам.

Сигурност

Ограда и контролиран достъп с чип до двора и сградата.

ИНВЕСТИТОР: Инвеститор с голямо портфолио завършени и успешно въведени в експлоатация сгради.

 

Билдинг Бокс предоставя безплатна консултация и съдействие при финансиране на избрания от Вас имот.

 

Оферта номер: 22622

ПОДОБНИ ИМОТИ

ПОДОБНИ
ИМОТИ

Сравняване на списъци

Сравни
Ана Сеферова
  • Ана Сеферова

Внимание

Академиите в София, Пловдив и Варна се провеждат 3 пъти в годината – в началото на всяка година, на пролет и на есен.

Очаквайте да се свържем с вас, за да се запишете за следващият свободен прозорец.

Най-голямата общност
за имотни инвестиции

7 857 души вече получават достъп до нови,
необявени проекти на занижени цени.