Имоти
Имоти

Двуетажна къща с АКТ 16 – кв. Западен

Реф. №: 22572
Пловдив, Западен

Общ преглед

  • Къща
  • Тип имот
  • 3
  • Спални
  • 230
  • 2024
  • Година на строеж

Допълнителни детайли

  • Номер на имота: 22572
  • Цена: € 279,000
    (545,676.57 лв.)
  • Спални: 3
  • Площ: 230
  • Статус на имота: Купи

Размер на кредит

| €

2,500 €

500,000 €

Срок на кредит

| месеца

36 месеца

360 месеца

Лихвен процент

| %

2.45%

5%

Месечна вноска

ГПР %

Общо дължима сума

Действия по вписване на ипотека (Еднократно)

€20.45

Такса за проверка и анализ на обезпечението по кредита (Еднократно)

€204.52

Такса план (Месечно)

€6.13

Такса за оценка на обезпечение (Еднократно)

€120.15

Powered by Credia

Стойност на имота

€279000 / 545677 лв.

Няма данни за наемите в района.

Powered by Credia

Имаш интерес?

Свържи се
с нас

Имаш интерес?

Свържи се
с нас

Обадете се 0877190777

Описание

БИЛДИНГ БОКС има удоволствието да Ви представи двуетажна къща с АКТ 16 в район Западен.


Предимства на имота:

- ЛОКАЦИЯ: Сред нови къщи - спокойна локация далеч от шума и същевременно с бърз излаз към бул. Пещерско шосе и в близост до Гребна база.

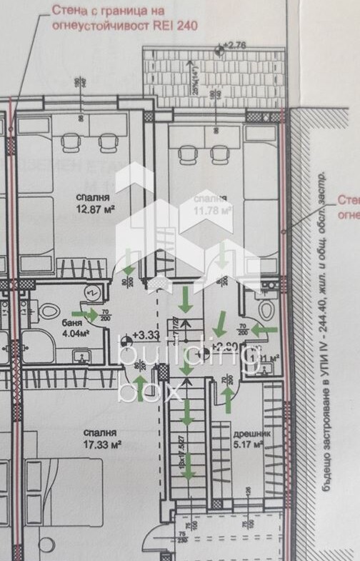
- ЕТАЖНОСТ и РАЗПРЕДЕЛЕНИЕ: Къщата е на два етажа и разполага със собствен малък двор. Общата квадратура на къщата е 161 кв.м., разпределени както следва:

1. Първи етаж - Входно антре 9,40 кв.м., южна светла дневна 24 кв.м., отделена трапезария и кухненски бокс 23 кв.м., тоалетна 2,22 кв.м., склад 1,67 кв.м. и излаз към заден озеленен двор;

2. Втори етаж - На второто ниво са разположени три спални с квадратури 17,33 кв.м., 12,87 кв.м. и 11,78 кв.м., всяка с излаз на тераса, коридор, дрешник с площ от 5,17 кв.м., тоалетна 2 кв.м. и още една баня с тоалетна с площ от 4 кв.м.

3. Подземие - Гараж с топла връзка 25,05 кв.м., който не влиза в квадратурата, както и склад 12,11 кв.м. и техническо помещение 32,44 кв.м., което може да е за котелно или изба. Пред гаража има 20 кв.м. паркомясто за втори автомобил.

- ОТОПЛЕНИЕ: Има възможност да бъде изградена климатична система, както и парно отопление с водна риза.

- СТЕПЕН НА ЗАВЪРШЕНОСТ: АКТ 16.


БИЛДИНГ БОКС предоставя безплатна консултация и съдействие при финансиране на избрания от Вас имот.

Оферта №22572

ПОДОБНИ ИМОТИ

ПОДОБНИ
ИМОТИ

Сравняване на списъци

Сравни
Ана Димитрова
  • Ана Димитрова

Внимание

Академиите в София, Пловдив и Варна се провеждат 3 пъти в годината – в началото на всяка година, на пролет и на есен.

Очаквайте да се свържем с вас, за да се запишете за следващият свободен прозорец.

Най-голямата общност
за имотни инвестиции

7 857 души вече получават достъп до нови,
необявени проекти на занижени цени.