Имоти
Имоти

Двустаен апартамент в затворен комплекс в парк с морска панорама

Реф. №: 9785
Варна, м-т Св. Никола

Общ преглед

  • 2-стаен
  • Тип имот
  • 1
  • Спалня
  • 210
  • 2025
  • Година на строеж

Допълнителни детайли

  • Номер на имота: 9785
  • Цена: € 333,300
    (651,878.14 лв.)
  • Спалня: 1
  • Площ: 210
  • Статус на имота: Купи

Размер на кредит

| лв.

5,000 лв.

1,000,000 лв.

Срок на кредит

| месеца

36 месеца

360 месеца

Лихвен процент

| %

2.45%

5%

Месечна вноска

ГПР %

Общо дължима сума

Действия по вписване на ипотека (Еднократно)

40.00 лв.

Такса за проверка и анализ на обезпечението по кредита (Еднократно)

400.00 лв.

Такса план (Месечно)

11.99 лв.

Такса за оценка на обезпечение (Еднократно)

235.00 лв.

Powered by Credia

Стойност на имота

651879 лв. / €333300

Ценови диапазон за наем на 2-стаен в м-т Св. Никола, Варна

€330 - €400

Процент на възвръщаемост:

1.44%

*Цените са ориентировачни. За повече информация се свържете с наш консултант.

Powered by Credia

Имаш интерес?

Свържи се
с нас

Имаш интерес?

Свържи се
с нас

Обадете се 0879900993

Описание

Do you want to learn more about real estate market in Bulgaria? Are you interested in this offer? Make an appointment and learn more about it. 

We have a qualified team of professionals and we'll help you have a smooth and successful buying experience. The best way to protect yourself from fraud is to work with us.


БИЛДИНГ БОКС продава двустаен апартамент в затворен комплекс в парк с морска панорама.

Предимства на имота:

– Гъвкави схеми на плащане

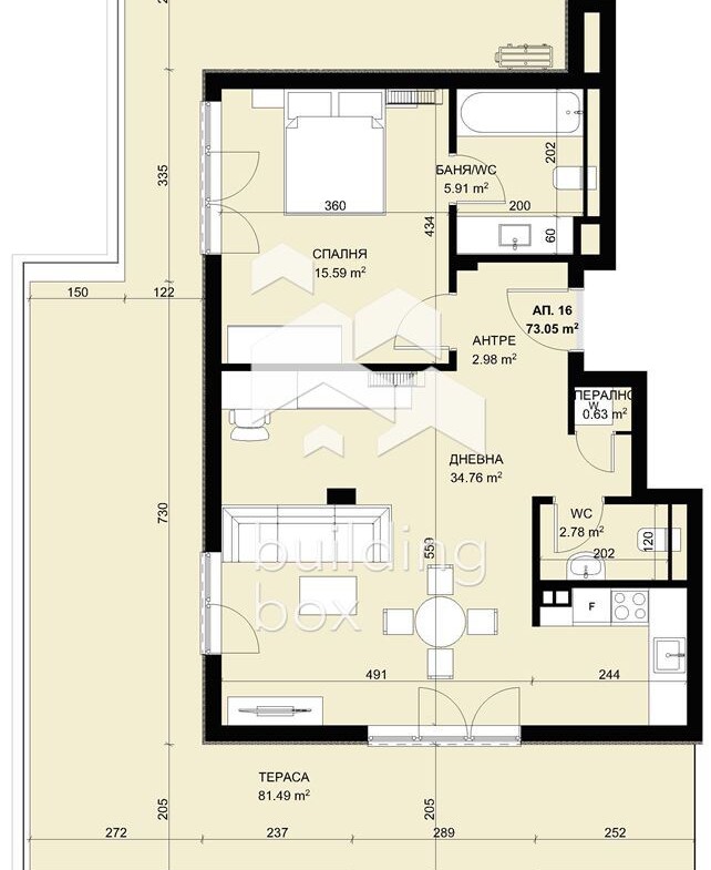
– РАЗПРЕДЕЛЕНИЕ: Апартаментът се състои от всекидневна с кухненски бокс с площ от 34.76 кв.м. с излаз на тераса - 81.49 кв.м. , спалня - 15.59 кв.м. и самостоятелна баня с тоалетна - 5.91 кв.м., перално помещение - 0.63 кв.м., тоалетна - 2.78 кв.м. Общата площ е 209.71 кв.м., а застроената – 73.05 кв.м.

– ЕТАЖ: Етаж 4 от общо 4.

– ИЗЛОЖЕНИЕ: Юг/Запад.

– ОТОПЛЕНИЕ: Газ, електричество. Газификация на всеки вход по вертикал и хоризонтал до мястото на газовия котел и котлони на кухня. Отръбяване за водно парно за всеки апартамент.

– ЗАВЪРШЕНОСТ: Вароциментови мазилки по стени и тавани, гипсокартон и замазки по подове. Комплекса е с акт14. Удостоверение за въвеждане в експлоатация се очаква декември 2024 г.

– ОБЩИ ЧАСТИ: Коридорите и стълбищните клетки на всеки вход са с настилки от естествен камък и осветени с дизайнерско ниско-енергийно LED осветление.Външните паркоместа са с асфалтова настилка – номерирани и разграфени.

– ЛОКАЦИЯ: м-т Свети Никола

– СИГУРНОСТ: Достъпът до комплекса е ограничен с бариера – с постоянно видеонаблюдение на вътрешните части и периферията на комплекса.

– ПАРКИРАНЕ: Възможност за закупуване на паркомясто или гараж.

Гаражите, вътрешните и подземните паркоместа са изпълнени от шлайфан бетон и/или полимерна настилка, осигуряващи лесна поддръжка при замърсявания от петролни продукти – номерирани и разграфени.

– КОМПЛЕКС: Сградите разполагат с контрол на достъп, видеонаблюдение на вътрешно и външно пространство на всеки вход и видеодомофонна звънчева система.

Кръгови кръстовища и локално, опосредстващи бърза и безопасна връзка с транспортната схема на гр. Варна при дигитален достъп до комплекса чрез разпознаване на регистрационен номер, телефон, чип и/или дистанционно, съобразен с всеки ползвател.

– ПАРК: Ландшафтна архитектура, съчетаваща над 7000 бр. различни по големина и структура дървесна, храстова, тревиста, цъфтяща, вечнозелена и увивна растителност. Дизайнерско алейно, градинско и обектово LED осветление, създаващо комфорт и нощна приказна феерия от светлина в парка.

Собствени сондажи за управление на възобновяеми източници при инженерно оптимизиран разход и постоянен нисък общ разход за поддръжка на парка.

Сградите са оборудвани с периферно видеонаблюдение, съобразено с цялостно решение за дигитален достъп в комплекса.


Изобилието от зеленина хармонира с парковите съоръжения, сред които са:

  • 2 детски площадки 3-12 г.
  • 2 площадки 10+
  • лаундж зона
  • външен фитнес
  • зона за разхождане на домашни любимци
  • просторни алеи и зелени площи.


Простор & Панорама.

Синергия & Симбиоза.



Билдинг Бокс предоставя безплатна консултация и съдействие при финансиране на избрания от Вас имот.

Оферта № 9785

ПОДОБНИ ИМОТИ

ПОДОБНИ
ИМОТИ

Сравняване на списъци

Сравни
Ралица Желева
  • Ралица Желева

Внимание

Академиите в София, Пловдив и Варна се провеждат 3 пъти в годината – в началото на всяка година, на пролет и на есен.

Очаквайте да се свържем с вас, за да се запишете за следващият свободен прозорец.

Най-голямата общност
за имотни инвестиции

7 857 души вече получават достъп до нови,
необявени проекти на занижени цени.