Имоти
Имоти

Двустайно апартамент – кв. Люлин 8

Реф. №: 28398
София, Люлин 8

Общ преглед

  • Ателие, Таван
  • Тип имот
  • 1
  • Спалня
  • 46
  • 2028
  • Година на строеж

Допълнителни детайли

  • Номер на имота: 28398
  • Цена: € 125,373
    (245,208.27 лв.)
  • Спалня: 1
  • Площ: 46
  • Статус на имота: Купи

Размер на кредит

| €

2,500 €

500,000 €

Срок на кредит

| месеца

36 месеца

360 месеца

Лихвен процент

| %

2.45%

5%

Месечна вноска

ГПР %

Общо дължима сума

Действия по вписване на ипотека (Еднократно)

€20.45

Такса за проверка и анализ на обезпечението по кредита (Еднократно)

€204.52

Такса план (Месечно)

€6.13

Такса за оценка на обезпечение (Еднократно)

€120.15

Powered by Credia

Стойност на имота

€125373 / 245209 лв.

Няма данни за наемите в района.

Powered by Credia

Имаш интерес?

Свържи се
с нас

Имаш интерес?

Свържи се
с нас

Обадете се 0877734412

Описание

БИЛДИНГ БОКС предлага 2-стаен апартамент в проект Чар, кв. Люлин 8 - стратегическо разположение между метростанциите Люлин и Сливница.

Бърз достъп до множество автобусни линии, хипермаркети, кооперативния пазар, магазини за техника и дома, клиники, аптеки, болници, паркове и учебни заведения.

Идеално, както за живеене, така и за инвестиция.


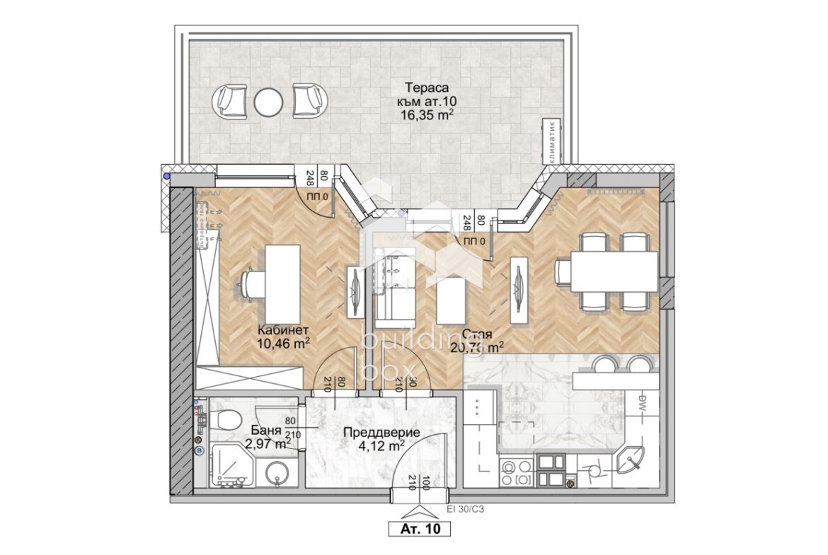
Имот:

Апартаментът е със статут на ателие. Застроената му площ е 45.72 кв.м и допълнителни 16.16 кв.м двор/тераса.

Апартаментът е разположен на 1-ви етаж от общо 9 и се отоплява на ТЕЦ.

Изложението е север и е част от нова модерна тухлена сграда, която ще бъде въведена в експлоатация през 2028 г.


Разпределение:

- Хол с кухненски бокс;

- Спалня;

- Баня с тоалетна;

- Входно антре;

- Двор/тераса 16.16 кв.м.


Има опция и за закупуване на паркомясто или гараж с цени от 18 500 евро.


Предимства на проекта:

1. Сграда с 59 апартамента: двустайни, тристайни и ателиета;

2. Изключително сигурен и доказан строител с безупречна репутация и многобройни реализирани обекти (офиси, магазини, апартаменти и гаражи);

3. Липса на индексация в договорите;

4. Изпълнение с висококачествена минерална мазилка

5. Френски прозорци с трислоен стъклопакет;

6. Асансьори KONE за 8–10 човека;

7. Ново тухлено строителство с очакван акт 16: края на 2028 г.;

8. Функционално и комфортно разпределение;

9. Подходящо за лично ползване и инвестиция


БИЛДИНГ БОКС предоставя безплатна консултация и съдеиствие при финансиране на избрания от Вас имот.

Оферта №28398

ПОДОБНИ ИМОТИ

ПОДОБНИ
ИМОТИ

Сравняване на списъци

Сравни
Виктор Данданов
  • Виктор Данданов

Внимание

Академиите в София, Пловдив и Варна се провеждат 3 пъти в годината – в началото на всяка година, на пролет и на есен.

Очаквайте да се свържем с вас, за да се запишете за следващият свободен прозорец.

Най-голямата общност
за имотни инвестиции

7 857 души вече получават достъп до нови,
необявени проекти на занижени цени.