Имоти
Имоти

Продава тристаен с Акт 14 в жк. Овча купел 1

Реф. №: 25585
София, Овча Купел 1

Общ преглед

  • 3-стаен
  • Тип имот
  • 2
  • Спални
  • 155
  • 2026
  • Година на строеж

Допълнителни детайли

  • Номер на имота: 25585
  • Цена: € 205,000
    (400,945.15 лв.)
  • Спални: 2
  • Площ: 155
  • Статус на имота: Купи

Размер на кредит

| лв.

5,000 лв.

1,000,000 лв.

Срок на кредит

| месеца

36 месеца

360 месеца

Лихвен процент

| %

2.45%

5%

Месечна вноска

ГПР %

Общо дължима сума

Действия по вписване на ипотека (Еднократно)

40.00 лв.

Такса за проверка и анализ на обезпечението по кредита (Еднократно)

400.00 лв.

Такса план (Месечно)

11.99 лв.

Такса за оценка на обезпечение (Еднократно)

235.00 лв.

Powered by Credia

Стойност на имота

400946 лв. / €205000

Ценови диапазон за наем на 3-стаен в Овча Купел 1, София

€620 - €770

Процент на възвръщаемост:

4.51%

*Цените са ориентировачни. За повече информация се свържете с наш консултант.

Powered by Credia

Имаш интерес?

Свържи се
с нас

Имаш интерес?

Свържи се
с нас

Обадете се 0879900994

Описание

БИЛДИНГ БОКС предлага за продажба тристаен апартамент в малка кокетна сграда в ж.к. Овча Купел 1.

Сградата е пред АКТ 15 и ще бъде завършена началото на 2026-та година.


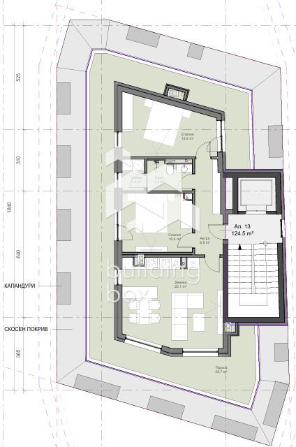
Апартаментът се намира на пети етаж от общо пет етажа, със застроена площ от 135,04 кв.м и има следното разпределение: дневна с кухненски бокс, 2 спални, баня с тоалетна, склад, антре и тераса 52,70 кв.м..

Жилището е с всички изложения, тъй като е самостоятелен на етажа.

Отоплението е предвидено на газ.


Сградата има модерна архитектура с подчертана индивидуалност и уникален собствен стил. Жилищата са проектирани така, че да имат повече естествена светлина и простор. Строителството се изпълнява с качествени материали.


Сградата се отличава със своята модерна визия и добро местоположение в тих и спокоен район. Сградата се намира на десет минути пеша от метростанция Горна баня, на 4 минути пеша до автобусни спирки и на 12 минути пеша до НБУ. Локацията на сградата осигурява удобство и възможност за бърза връзка до главни булеварди и изходящи пътни артерии на столицата.


Предлага се също и подземно паркомясто на цена от 25 000 евро.


Срокове за изпълнение: 

АКТ 15 – март 2026 г.

АКТ 16 – юни 2026г.


Гъвкави схеми на плащане!


БИЛДИНГ БОКС предоставя безплатна консултация и съдействие при финансиране на избрания от Вас имот

Оферта № 25585

ПОДОБНИ ИМОТИ

ПОДОБНИ
ИМОТИ

Сравняване на списъци

Сравни
Ана Сеферова
  • Ана Сеферова

Внимание

Академиите в София, Пловдив и Варна се провеждат 3 пъти в годината – в началото на всяка година, на пролет и на есен.

Очаквайте да се свържем с вас, за да се запишете за следващият свободен прозорец.

Най-голямата общност
за имотни инвестиции

7 857 души вече получават достъп до нови,
необявени проекти на занижени цени.