Имоти
Имоти

Просторен 4-стаен апартамент с двор в бутиков комплекс в .Бистрица

Реф. №: 28601
София, с.Бистрица

Общ преглед

  • 4-стаен
  • Тип имот
  • 3
  • Спални
  • 129
  • 2028
  • Година на строеж

Допълнителни детайли

  • Номер на имота: 28601
  • Цена: € 268,000
    (524,162.44 лв.)
  • Спални: 3
  • Площ: 129
  • Статус на имота: Купи

Размер на кредит

| €

2,500 €

500,000 €

Срок на кредит

| месеца

36 месеца

360 месеца

Лихвен процент

| %

2.45%

5%

Месечна вноска

ГПР %

Общо дължима сума

Действия по вписване на ипотека (Еднократно)

€20.45

Такса за проверка и анализ на обезпечението по кредита (Еднократно)

€204.52

Такса план (Месечно)

€6.13

Такса за оценка на обезпечение (Еднократно)

€120.15

Powered by Credia

Стойност на имота

€268000 / 524163 лв.

Няма данни за наемите в района.

Powered by Credia

Имаш интерес?

Свържи се
с нас

Имаш интерес?

Свържи се
с нас

Обадете се 0879900994

Описание

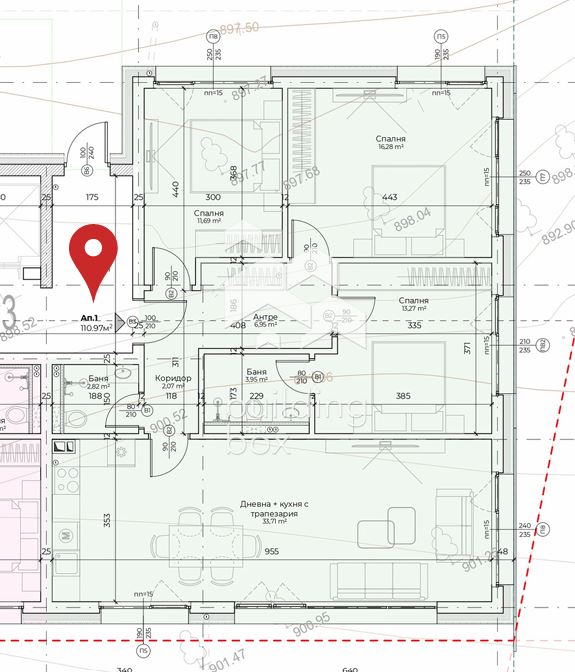
БИЛДИНГ БОКС продава просторен 4-стаен апартамент с двор в изключителен комплекс от 6 многофамилни жилищни сгради в с. Бистрица.



Апартаментът е със застроена площ 109,66кв.м. и обща площ 128,90 кв.м. със самостоятелен източен двор 132 кв.м. Намира се на 1 етаж от 4 в сграда 3 и е с изложение Ю / И

Подходящ за лично ползване , инвестиция .



Състои се от : 3 спални, хол с кухненски бокс, 2 бани, антре, коридор и двор



Обектът се отличава със забележителна архитектура на престижното студио Амфион с множество награди в областта , функционални разпределения, които да осигурят комфорт на собствениците и изпълнение с високи стандарти в строителството.

Обект, отговарящ на най-високи показатели на енергийна ефективност.



Локацията е с. Бистрица , южен склон под емблематичния стадион Бистрица , на 7 км от Ринг Мол и ИКЕА и пешеходно разстояние от центъра. Средата е с изградена вече инфраструктура и реализирани обекти от къщи.

Отличава се със самостоятелност , без риск на изолация. Естествен допир до природата , чист въздух и ландшафтни решения , носещи хармония . Предвидени са детска площадка и стрийт фитнес в общите площи.



Сградите ще имат следните технически характеристики :


  • Фасада - Вентилируема окачена фасада с керамично покритие и топлоизолационна система с минимум 10 см топлоизолация -с най-добри показатели в съвременното строителство по отношение на устойчивост , ефективност и визия ;
  • Тухлена зидария - керамични тухли Wienerberger , 25 см за външни стени , 12 см за преградни ;
  • Дограма - 7 камерна с троен стъклопакет Kommerling ;
  • Отопление - електричество, апартаментите се издават с изводи за термопомпа и вътрешни тела на ток. Допълнително може да се монтира подово отопление по заявка на собственика
  • Асансьор - 1 брой във всяка сграда , електрически с автоматични врати за 6 до 8 човека.


Всеки апартамент се издава по БДС , общите части се решават с гранитогрес и стенни облицовки , осветление по дизайн.




Срокове за изпълнение :


Старт на строителството - 12.2025г


Акт 14 и чл. 181 - 08.2026г.


Акт 15 - 05.2027г.


Акт 16 - 01.2028г.


Схеми на плащане :


ПД - 20 %


Акт 14 и чл. 181 - 60%


Акт 15 - 10%


Акт 16 - 10%



БИЛДИНГ БОКС предоставя безплатна консултация и съдействие при финансиране на избрания от Вас имот.

Оферта № 28601

ПОДОБНИ ИМОТИ

ПОДОБНИ
ИМОТИ

Сравняване на списъци

Сравни
Мария Василева
  • Мария Василева

Внимание

Академиите в София, Пловдив и Варна се провеждат 3 пъти в годината – в началото на всяка година, на пролет и на есен.

Очаквайте да се свържем с вас, за да се запишете за следващият свободен прозорец.

Най-голямата общност
за имотни инвестиции

7 857 души вече получават достъп до нови,
необявени проекти на занижени цени.