Имоти
Имоти

Четиристаен апартамент – гр. Пловдив

Реф. №: 24042
Пловдив, Младежки Хълм

Общ преглед

  • 4-стаен
  • Тип имот
  • 3
  • Спални
  • 151
  • 2026
  • Година на строеж

Допълнителни детайли

  • Номер на имота: 24042
  • Цена: € 217,384
    (425,166.15 лв.)
  • Спални: 3
  • Площ: 151
  • Статус на имота: Купи

Размер на кредит

| €

2,500 €

500,000 €

Срок на кредит

| месеца

36 месеца

360 месеца

Лихвен процент

| %

2.45%

5%

Месечна вноска

ГПР %

Общо дължима сума

Действия по вписване на ипотека (Еднократно)

€20.45

Такса за проверка и анализ на обезпечението по кредита (Еднократно)

€204.52

Такса план (Месечно)

€6.13

Такса за оценка на обезпечение (Еднократно)

€120.15

Powered by Credia

Стойност на имота

€217384 / 425167 лв.

Няма данни за наемите в района.

Powered by Credia

Имаш интерес?

Свържи се
с нас

Имаш интерес?

Свържи се
с нас

Обадете се 0877190777

Описание

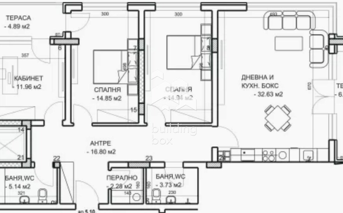
БИЛДИНГ БОКС предлага за продажба четиристаен апартамент в гр. Пловдив.


Предимства на имота:

- ЛОКАЦИЯ: В непосредствена близост до Младежки хълм и Дентален университет.

- РАЗПРЕДЕЛЕНИЕ: Просторна всекидневна с кухненски бокс с площ от 32,63 кв.м., една спалня/кабинет с площ от 12 кв.м. и две спални с площ по 15 кв.м., антре, две бани с тоалетна, перално помещение, както и две тераси. Към апартамента има и изба, която е включена в цената.

- ЕТАЖНОСТ: 1-ви етаж (над партер) от общо 5.

- ОТОПЛЕНИЕ: Електричество.

- ИЗЛОЖЕНИЕ: СЕВЕРОИЗТОК.

- ПАРКИРАНЕ: Наличие на надземни паркоместа и гаражи.

- СГРАДА: Апартаментът се намира в първата сграда, част от комплекс от 4 малки бутикови сгради*.

- СХЕМА НА ПЛАЩАНЕ:

1. Схема 1: 30% на ПД / 30% на АКТ 14 и 40% на АКТ 15 - стандартна схема на плащане.

2. Схема 2: 30% на ПД и 70% на АКТ 15.

- ЕТАП НА СТРОИТЕЛСТВО: Сградата е с АКТ 14. Въвеждане в експлоатация се очаква до края на 2026г.


* НИСЪК ПРОЦЕНТ ОБЩИ ЧАСТИ


БИЛДИНГ БОКС предоставя безплатна консултация и съдействие при финансиране на избрания от Вас имот.

Оферта № 24042

ПОДОБНИ ИМОТИ

ПОДОБНИ
ИМОТИ

Сравняване на списъци

Сравни
Божидар Игнатов
  • Божидар Игнатов

Внимание

Академиите в София, Пловдив и Варна се провеждат 3 пъти в годината – в началото на всяка година, на пролет и на есен.

Очаквайте да се свържем с вас, за да се запишете за следващият свободен прозорец.

Най-голямата общност
за имотни инвестиции

7 857 души вече получават достъп до нови,
необявени проекти на занижени цени.