Имоти
Имоти

Двуетажна къща с 3 спални в затворен комплекс тип “Town House”

Реф. №: 20117
Пловдив, област, с.Марково

Общ преглед

  • Къща
  • Тип имот
  • 3
  • Спални
  • 177
  • 2026
  • Година на строеж

Допълнителни детайли

  • Номер на имота: 20117
  • Цена: € 239,300
    (468,030.12 лв.)
  • Спални: 3
  • Площ: 177
  • Статус на имота: Купи

Размер на кредит

| €

2,500 €

500,000 €

Срок на кредит

| месеца

36 месеца

360 месеца

Лихвен процент

| %

2.45%

5%

Месечна вноска

ГПР %

Общо дължима сума

Действия по вписване на ипотека (Еднократно)

€20.45

Такса за проверка и анализ на обезпечението по кредита (Еднократно)

€204.52

Такса план (Месечно)

€6.13

Такса за оценка на обезпечение (Еднократно)

€120.15

Powered by Credia

Стойност на имота

€239300 / 468031 лв.

Няма данни за наемите в района.

Powered by Credia

Имаш интерес?

Свържи се
с нас

Имаш интерес?

Свържи се
с нас

Обадете се 0879900984

Описание

БИЛДИНГ БОКС продава двуетажна къща с три спални, тип Town House.


Предимства на имота:

- ЛОКАЦИЯ: Намира се в затворен комплекс между с. Марково и гр. Пловдив, само на 7 км от центъра на града.

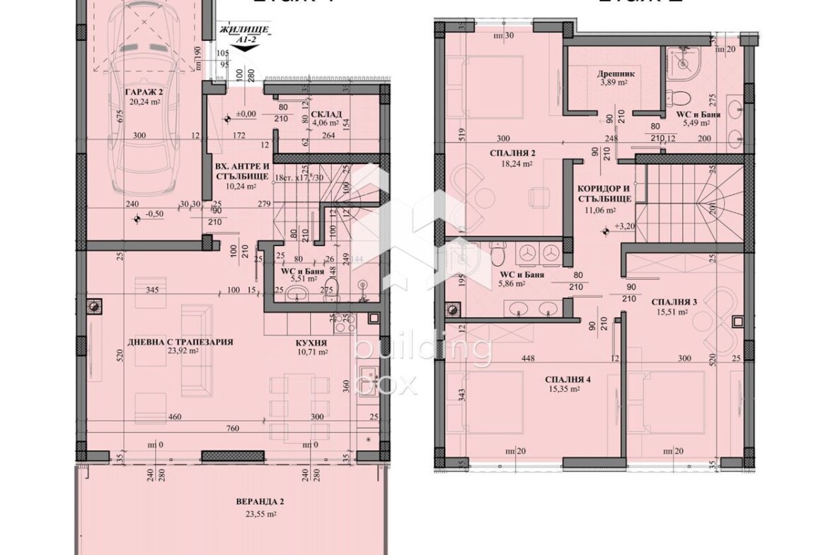
- ЕТАЖНОСТ и РАЗПРЕДЕЛЕНИЕ: Къщата е на два етажа и разполага със собствен двор. Общата квадратура на къщата е 177,26 кв.м, разпределени, както следва:

  • Първи етаж - Входно антре, изключително светла дневна с трапезария и кухненски бокс с площ от 35 кв.м, баня с тоалетна, складово помещение, топла връзка към гаража и веранда с площ от 23,55 кв.м;
  • Втори етаж - Родителска спалня с площ над 18 кв.м със собствен дрешник и санитарен възел, още две спални с площ над 15 кв.м и общ санитарен възел на етажа.

- ОТОПЛЕНИЕ: Електричество /климатик/.

- ПАРКИРАНЕ: В цената е включен гараж за 1 кола, както и паркомясто пред гаража.

- ЕТАП НА СТРОИТЕЛСТВО: Първа копка се очаква през м. Април 2025г. Въвеждане в експлоатация - до края на 2026г.


БИЛДИНГ БОКС предоставя безплатна консултация и съдействие при финансиране на избрания от Вас имот.

Оферта № 20117

ПОДОБНИ ИМОТИ

ПОДОБНИ
ИМОТИ

Сравняване на списъци

Сравни
Кристина Шупак
  • Кристина Шупак

Внимание

Академиите в София, Пловдив и Варна се провеждат 3 пъти в годината – в началото на всяка година, на пролет и на есен.

Очаквайте да се свържем с вас, за да се запишете за следващият свободен прозорец.

Най-голямата общност
за имотни инвестиции

7 857 души вече получават достъп до нови,
необявени проекти на занижени цени.