| €
2,500 €
500,000 €
| месеца
36 месеца
360 месеца
| %
2.45%
5%
Месечна вноска
ГПР %
Общо дължима сума
Действия по вписване на ипотека (Еднократно)
€20.45
Такса за проверка и анализ на обезпечението по кредита (Еднократно)
€204.52
Такса план (Месечно)
€6.13
Такса за оценка на обезпечение (Еднократно)
€120.15
Powered by Credia
Подходящ се за предварително одобрение!
Lorem ipsum dolor sit amet, consectetur adipiscing elit. Maecenas imperdiet leo nisl, et porta massa tempus eget. Sed vestibulum sagittis ante eu dictum.
Ценови диапазон за наем на 2-стаен в Манастирски Ливади, София
€650 - €750
Процент на възвръщаемост:
2.41%
*Цените са ориентировачни. За повече информация се свържете с наш консултант.
Powered by Credia
Подходящ се за предварително одобрение!
Lorem ipsum dolor sit amet, consectetur adipiscing elit. Maecenas imperdiet leo nisl, et porta massa tempus eget. Sed vestibulum sagittis ante eu dictum.
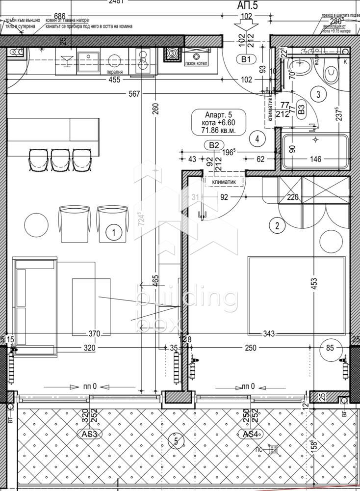
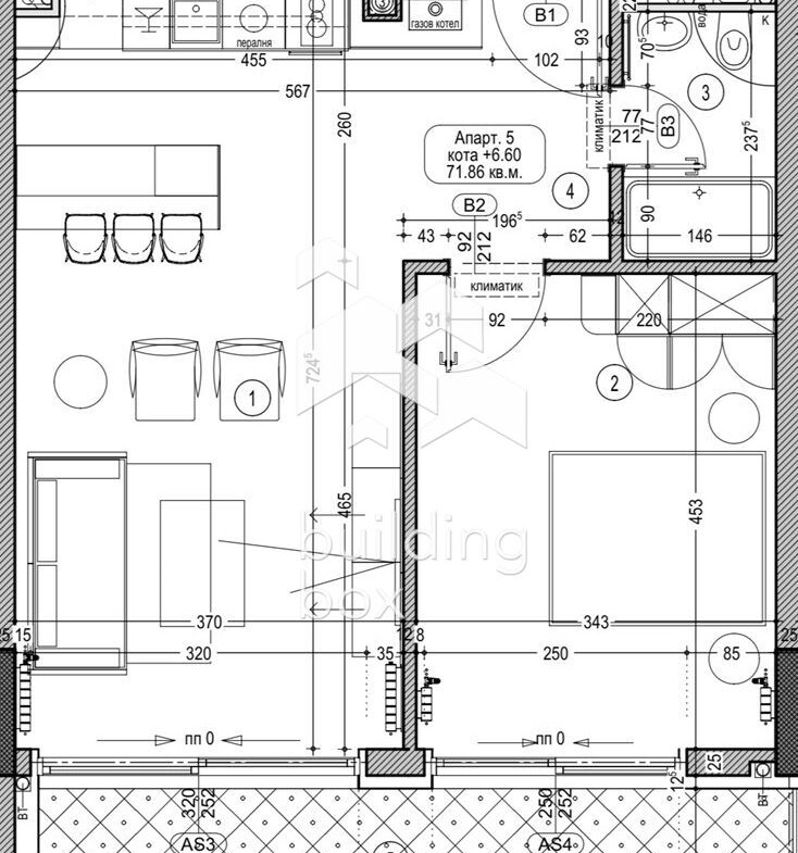
БИЛДИНГ БОКС предлага за продажба двустаен апартамент със застроена площ от 71.86 кв.м. в комплекс DIADA HOME, кв. Манастирски ливади.
Апартаментът се състои се от антре, дневна с кухненски бокс, спалня, баня с тоалетна и тераса.
Намира се на 2-ти етаж от 6 с изложение юг-изток.
Сградата е със сертификат за енергийна ефективност клас А, а отоплението е на газ и електричество.
Жилището е напълно обзаведено с всичко необходимо, готово да се превърне във Вашия мечтан дом.
Сградата е с Акт 16 от м. Декември 2025 г.
С какво се отличава сградата?
Модерна визия и високо качество:
1. Вентилируема окачена фасада с широкоформатен гранитогрес, съчетана с модерни френски прозорци;
2. Сертификат за енергийна ефективност клас А;
3. Широка рампа за маневриране;
4. Предвидена е мултисплит система за отопление и охлаждане и опция за газово котле;
5. Луксозно изпълнение на общите части.
Към имота има възможност да се закупи подземно паркомясто.
БИЛДИНГ БОКС предоставя безплатна консултация и съдействие при финансиране на избрания от Вас имот.
Оферта № 30424
Сравняване на списъци
СравниМоля, въведете вашето потребителско име или имейл адрес. Ще получите връзка за създаване на нова парола по имейл.
Академиите в София, Пловдив и Варна се провеждат 3 пъти в годината – в началото на всяка година, на пролет и на есен.
Очаквайте да се свържем с вас, за да се запишете за следващият свободен прозорец.