| €
2,500 €
500,000 €
| месеца
36 месеца
360 месеца
| %
2.45%
5%
Месечна вноска
ГПР %
Общо дължима сума
Действия по вписване на ипотека (Еднократно)
€20.45
Такса за проверка и анализ на обезпечението по кредита (Еднократно)
€204.52
Такса план (Месечно)
€6.13
Такса за оценка на обезпечение (Еднократно)
€120.15
Powered by Credia
Подходящ се за предварително одобрение!
Lorem ipsum dolor sit amet, consectetur adipiscing elit. Maecenas imperdiet leo nisl, et porta massa tempus eget. Sed vestibulum sagittis ante eu dictum.
Ценови диапазон за наем на 2-стаен в Смирненски, Пловдив
€450 - €550
Процент на възвръщаемост:
6.73%
*Цените са ориентировачни. За повече информация се свържете с наш консултант.
Powered by Credia
Подходящ се за предварително одобрение!
Lorem ipsum dolor sit amet, consectetur adipiscing elit. Maecenas imperdiet leo nisl, et porta massa tempus eget. Sed vestibulum sagittis ante eu dictum.
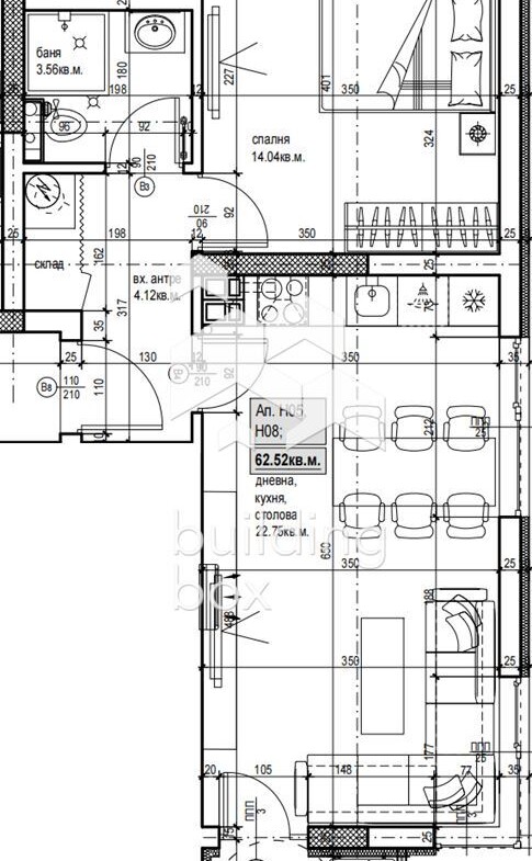
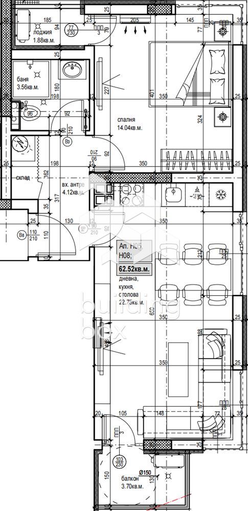
БИЛДИНГ БОКС предлага за продажба двустаен апартамент в нов комплекс в гр. Пловдив.
Предимства на имота:
- ЛОКАЦИЯ: Изключително предпочитан район за живеене - кв. Христо Смирненски, в близост до Гребна база, детски градини, училища, супермаркети, болници и бърз изход от града.
- РАЗПРЕДЕЛЕНИЕ: Просторна всекидневна с кухненски бокс с площ от 22,75 кв.м, спалня, баня с тоалетна, антре, склад и две тераси..
- ПЛОЩ: Общата площ на апартамента е 75,40 кв.м.
- ЕТАЖ: 3-ти етаж от общо 6.
- ИЗЛОЖЕНИЕ: СЕВЕР/ИЗТОК/ЮГ.
- ОТОПЛЕНИЕ: Електричество.
- ПАРКИРАНЕ: Над 120% осигурено паркиране за живущите. В подземния паркинг има обособени зони за съхранение на велосипеди.
Предимства на сградата:
- СТРОИТЕЛСТВО: Доверен инвеститор с голямо портфолио от завършени комплекси.
- ОБЩИ ЧАСТИ: Собствен парк с кътове за отдих и детска площадка.
- СИГУРНОСТ: В комплекса ще има постоянно видеонаблюдение. Достъпът до комплекса ще бъде ограничен с бариера.
- СХЕМИ НА ПЛАЩАНЕ: Три основни схеми на плащане, но с възможност за индивидуална схема, според нуждите на клиента.
- ЕТАП НА СТРОИТЕЛСТВО: Сградата е в начален етап на строителство и се очаква да бъде въведена в експлоатация през 2029г.
- СГРАДА: Алуминиева дограма, троен стъклопакет - 4 сезона, окачена вентилируема фасада с клинкерни тухли, шумоизолация на подовете, филтрираща система за питейна вода, подготовка за интелигентен дом, система за видеонаблюдение, луксозни общи части по дизайнерски проект.
БИЛДИНГ БОКС предоставя безплатна консултация и съдействие при финансиране на избрания от Вас имот.
Оферта № 30875
Сравняване на списъци
СравниМоля, въведете вашето потребителско име или имейл адрес. Ще получите връзка за създаване на нова парола по имейл.
Академиите в София, Пловдив и Варна се провеждат 3 пъти в годината – в началото на всяка година, на пролет и на есен.
Очаквайте да се свържем с вас, за да се запишете за следващият свободен прозорец.