Имоти
Имоти

ДВУСТАЕН апартамент в новострояща се сграда в град Шумен

Реф. №: 27734
Шумен, Добруджански

Общ преглед

  • 2-стаен
  • Тип имот
  • 1
  • Спалня
  • 44
  • 2026
  • Година на строеж

Допълнителни детайли

  • Номер на имота: 27734
  • Цена: € 60,000
    (117,349.80 лв.)
  • Спалня: 1
  • Площ: 44
  • Статус на имота: Купи

Размер на кредит

| лв.

5,000 лв.

1,000,000 лв.

Срок на кредит

| месеца

36 месеца

360 месеца

Лихвен процент

| %

2.45%

5%

Месечна вноска

ГПР %

Общо дължима сума

Действия по вписване на ипотека (Еднократно)

40.00 лв.

Такса за проверка и анализ на обезпечението по кредита (Еднократно)

400.00 лв.

Такса план (Месечно)

11.99 лв.

Такса за оценка на обезпечение (Еднократно)

235.00 лв.

Powered by Credia

Стойност на имота

117350 лв. / €60000

Няма данни за наемите в района.

Powered by Credia

Имаш интерес?

Свържи се
с нас

Имаш интерес?

Свържи се
с нас

Обадете се 0879900993

Описание

Описание

БИЛДИНГ БОКС предлага ДВУСТАЕН апартамент в новострояща се сграда в град Шумен

ЛОКАЦИЯ: град Шумен, кв.Доброджански, подрайон Басейна, ул.Иван Рилски . Район - в близост до:

- новостроящ се басейнов комплекс,

- новостроящ се магазин Лидъл,

- детска площадка пред сградата

- втори корпус на Шуменски, университет,

- няколко основни и средни училища,

- детска градина до сградата.

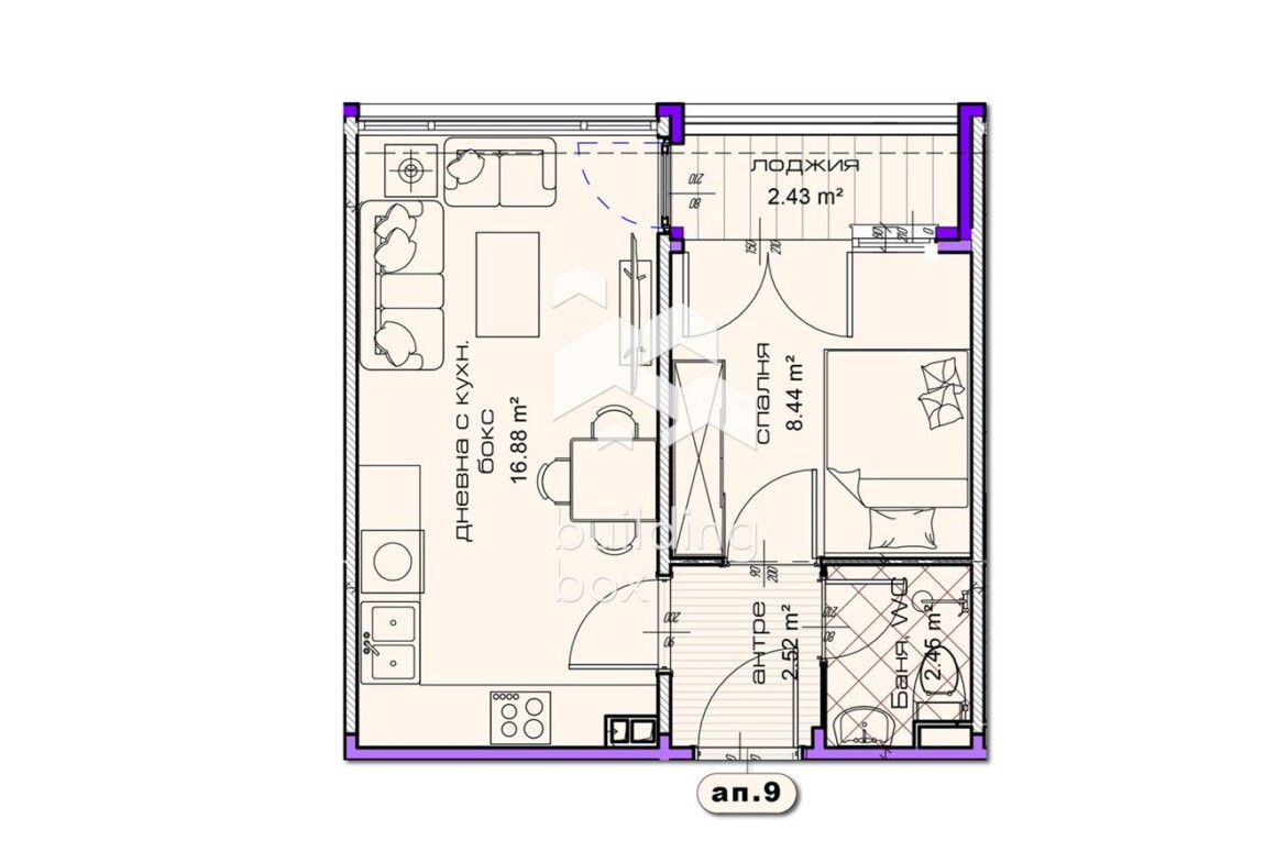
-РАЗПРЕДЕЛЕНИЕ: Всекидневна с кухненски бокс - 16.09 кв.м., спалня по 8.44 кв.м., баня с тоалетна, входно антре, лоджия, към апартамента има прилежаща Изба - 1.44 кв.м. . 

-ЕТАЖНОСТ: Етаж 3 от общо 5

-ОТОПЛЕНИЕ: Електричество 

-ИЗЛОЖЕНИЕ: Изток/Юг 

-СТРОИТЕЛСТВО: Тухла.

-ПАРКИРАНЕ: Ползване на паркомясто свободно

-СГРАДА: Сградата е в строеж. Очаква се Акт 16 - 2027 година 

-ИНВЕСТИТОР: Инвеститор с доказана история от вече завършени сгради, които могат да бъдат разгледани като начин на изпълнение, качество, външен вид и стил.


Билдинг Бокс предоставя безплатна консултация и съдействие при финансиране на избрания от Вас имот.

Оферта №27734

ПОДОБНИ ИМОТИ

ПОДОБНИ
ИМОТИ

Сравняване на списъци

Сравни
Силвия Георгиева
  • Силвия Георгиева

Внимание

Академиите в София, Пловдив и Варна се провеждат 3 пъти в годината – в началото на всяка година, на пролет и на есен.

Очаквайте да се свържем с вас, за да се запишете за следващият свободен прозорец.

Най-голямата общност
за имотни инвестиции

7 857 души вече получават достъп до нови,
необявени проекти на занижени цени.