Имоти
Имоти

Двустаен апартамент в Сухата река

Реф. №: 27560
София, Сухата Река

Общ преглед

  • 2-стаен
  • Тип имот
  • 1
  • Спалня
  • 80
  • 2028
  • Година на строеж

Допълнителни детайли

  • Номер на имота: 27560
  • Цена: € 148,018
    (289,498.04 лв.)
  • Спалня: 1
  • Площ: 80
  • Статус на имота: Купи

Размер на кредит

| лв.

5,000 лв.

1,000,000 лв.

Срок на кредит

| месеца

36 месеца

360 месеца

Лихвен процент

| %

2.45%

5%

Месечна вноска

ГПР %

Общо дължима сума

Действия по вписване на ипотека (Еднократно)

40.00 лв.

Такса за проверка и анализ на обезпечението по кредита (Еднократно)

400.00 лв.

Такса план (Месечно)

11.99 лв.

Такса за оценка на обезпечение (Еднократно)

235.00 лв.

Powered by Credia

Стойност на имота

289499 лв. / €148018

Ценови диапазон за наем на 2-стаен в Сухата Река, София

€430 - €560

Процент на възвръщаемост:

4.54%

*Цените са ориентировачни. За повече информация се свържете с наш консултант.

Powered by Credia

Имаш интерес?

Свържи се
с нас

Имаш интерес?

Свържи се
с нас

Обадете се 0879900994

Описание

БИЛДИНГ БОКС предлага за продажба двустаен апартамент в новострояща се сграда.


-ЛОКАЦИЯ: Разположена в кв. Сухата река, само на метри от центъра на София.

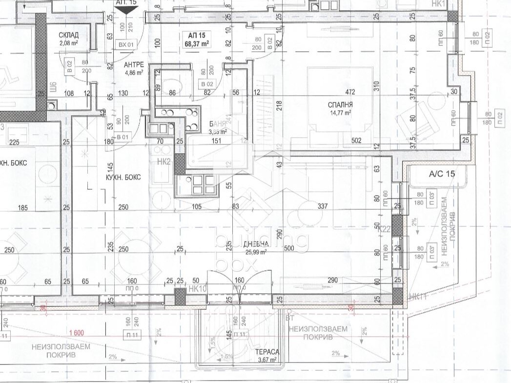
-РАЗПРЕДЕЛЕНИЕ: Апартаментът се състои от 1 спалня от 14,77 кв.м. светла площ, всекидневна с кухненски бокс - 25,99 кв.м. светла площ, баня с тоалетна, коридор,  към него е включена тераса с квадратура 3,67 кв.м. и склад с площ 2,08 кв.м.

-ЕТАЖНОСТ: Етаж 4 от общо 6

-ОТОПЛЕНИЕ: Електричество

-ИЗЛОЖЕНИЕ: юг / изток

-ПАРКИРАНЕ: Налични паркоместа

-СГРАДА: Сградата предлага удобни и съвременни жилища за своите бъдещи обитатели. Проектирана е със съвременен дизайн и се състои от 6 жилищни етажа и едно подземно ниво.

ЕТАП НА СТРОИТЕЛСТВО: Сградата е с Разрешение за строеж, изкопните дейности започват януари 2026 година.

ИНВЕСТИТОР: Инвеститор с доказана история от над 120 завършени сгради, които могат да бъдат разгледани като начин на изпълнение, качество, външен вид и стил.

Сградата се намира в квартал Сухата река, в близост до бул. Ботевградско шосе и спирки на трамвай 22, което предлага бърз достъп до центъра на града. Само на метри от сградата има детска градина, училище, хранителни магазини и куриерски офиси.


Билдинг Бокс предоставя безплатна консултация и съдействие при финансиране на избрания от Вас имот.

Оферта № 27560

ПОДОБНИ ИМОТИ

ПОДОБНИ
ИМОТИ

Сравняване на списъци

Сравни
Ана Сеферова
  • Ана Сеферова

Внимание

Академиите в София, Пловдив и Варна се провеждат 3 пъти в годината – в началото на всяка година, на пролет и на есен.

Очаквайте да се свържем с вас, за да се запишете за следващият свободен прозорец.

Най-голямата общност
за имотни инвестиции

7 857 души вече получават достъп до нови,
необявени проекти на занижени цени.