Имоти
Имоти

Къща с акт 16

Реф. №: 16114
Пловдив, Западен

Общ преглед

  • Къща
  • Тип имот
  • 3
  • Спални
  • 215
  • 2024
  • Година на строеж

Допълнителни детайли

  • Номер на имота: 16114
  • Цена: € 330,000
    (645,423.90 лв.)
  • Спални: 3
  • Площ: 215
  • Статус на имота: Купи

Размер на кредит

| €

2,500 €

500,000 €

Срок на кредит

| месеца

36 месеца

360 месеца

Лихвен процент

| %

2.45%

5%

Месечна вноска

ГПР %

Общо дължима сума

Действия по вписване на ипотека (Еднократно)

€20.45

Такса за проверка и анализ на обезпечението по кредита (Еднократно)

€204.52

Такса план (Месечно)

€6.13

Такса за оценка на обезпечение (Еднократно)

€120.15

Powered by Credia

Стойност на имота

€330000 / 645424 лв.

Няма данни за наемите в района.

Powered by Credia

Имаш интерес?

Свържи се
с нас

Имаш интерес?

Свържи се
с нас

Обадете се 0877190777

Описание

БИЛДИНГ БОКС има удоволствието да Ви представи двуетажна къща с Акт 16 в район „Западен“.


Предимства на имота:

ЛОКАЦИЯ: Сред нови къщи – спокойна локация, далеч от шума, и същевременно с бърз излаз към бул. „Пещерско шосе“ и в близост до „Гребна база“.

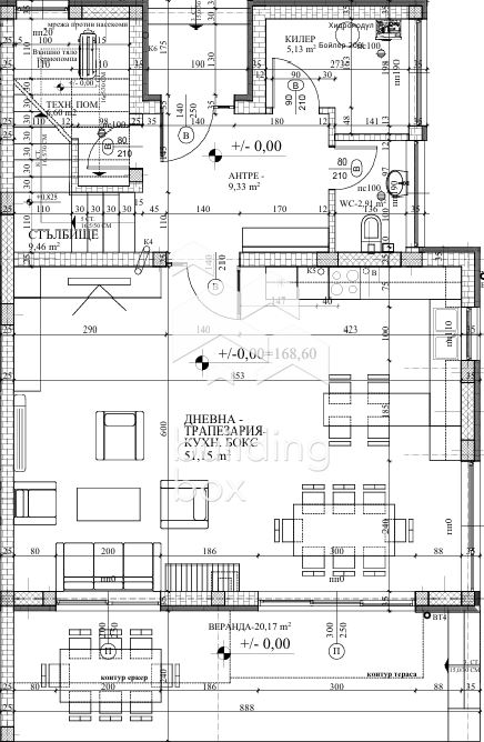
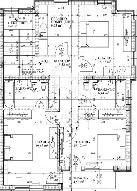
ЕТАЖНОСТ И РАЗПРЕДЕЛЕНИЕ: Къщата е на два етажа и разполага със собствен двор. Общата разгъната застроена площ е 250 кв. м.

Първи етаж: Входно антре, изключително светла дневна с трапезария и кухненски бокс (50 кв. м), баня с тоалетна, техническо помещение и веранда с площ 20,17 кв. м.

Втори етаж: На второто ниво са разположени три просторни спални, едната от които е със собствена баня и тоалетна и излаз на тераса, коридор, перално помещение (с площ 11 кв. м), което може да се използва като четвърта спалня или дрешник, както и още една баня с тоалетна.

ОТОПЛЕНИЕ: Къщата е с подготовка за подово отопление.

ПАРКИРАНЕ: В цената на къщата са включени две паркоместа.

ДВОР: Дворът е с площ 200 кв. м.

СТЕПЕН НА ЗАВЪРШЕНОСТ: Акт 16.


БИЛДИНГ БОКС предоставя безплатна консултация и съдействие при финансиране на избрания от Вас имот.

Оферта № 16114

ПОДОБНИ ИМОТИ

ПОДОБНИ
ИМОТИ

Сравняване на списъци

Сравни
Екатерина Кирилова
  • Екатерина Кирилова

Внимание

Академиите в София, Пловдив и Варна се провеждат 3 пъти в годината – в началото на всяка година, на пролет и на есен.

Очаквайте да се свържем с вас, за да се запишете за следващият свободен прозорец.

Най-голямата общност
за имотни инвестиции

7 857 души вече получават достъп до нови,
необявени проекти на занижени цени.