Имоти
Имоти

Мезонет в Хиподрума

Реф. №: 25322
София, Хиподрума

Общ преглед

  • Многостаен
  • Тип имот
  • 4
  • Спални
  • 237
  • 2012
  • Година на строеж

Допълнителни детайли

  • Номер на имота: 25322
  • Цена: € 675,000
    (1,320,185.25 лв.)
  • Спални: 4
  • Площ: 237
  • Статус на имота: Купи

Размер на кредит

| €

2,500 €

500,000 €

Срок на кредит

| месеца

36 месеца

360 месеца

Лихвен процент

| %

2.45%

5%

Месечна вноска

ГПР %

Общо дължима сума

Действия по вписване на ипотека (Еднократно)

€20.45

Такса за проверка и анализ на обезпечението по кредита (Еднократно)

€204.52

Такса план (Месечно)

€6.13

Такса за оценка на обезпечение (Еднократно)

€120.15

Powered by Credia

Стойност на имота

€675000 / 1320186 лв.

Няма данни за наемите в района.

Powered by Credia

Имаш интерес?

Свържи се
с нас

Имаш интерес?

Свържи се
с нас

Обадете се 0879900994

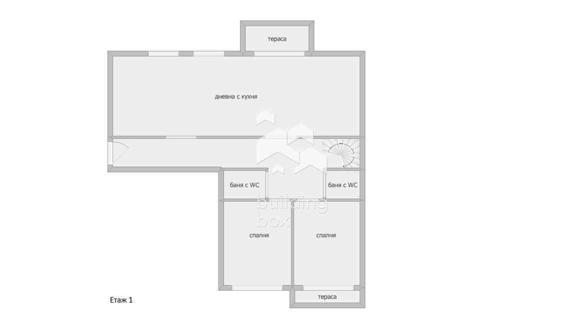
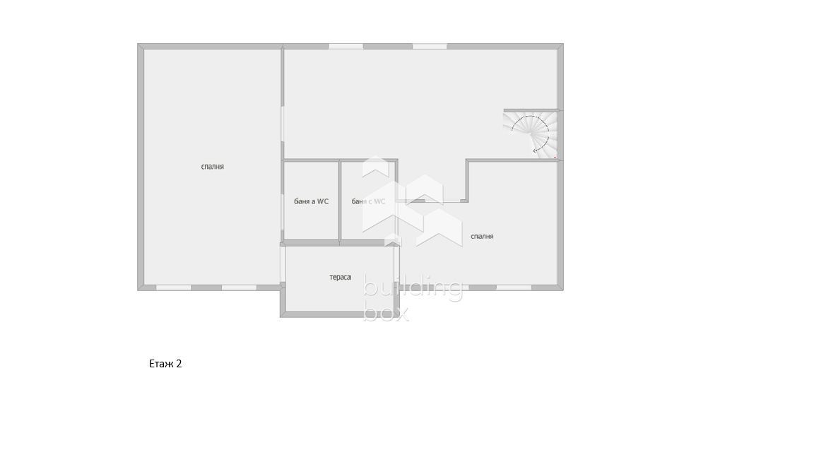
Описание

БИЛДИНГ БОКС предлага за продажба апартамент в един от най-предпочитаните комуникативни и същевременно зелени квартали на София - Хиподрума!


Имотът е на две нива: първото е със застроена площ от 119,80 кв.м. и се състои от антре, просторна дневна с кухненски бокс и тераса, 2 спални, 2 бани и втора тераса, второто ниво е със застроена площ 88,10 кв м. като се състои от предверие, 2 спални всяка със отделна баня, тераса с прекрасна гледка към Витоша. Квадратурата на двете нива не включва и допълнителни 56,6 кв.м с височина под 1,5 м. Имотът е завършен с настилки, бани и парапет на стълбите, с чисто нова дограма SALAMANDER.

Изложението е югозапад и изток.

Отоплението е на ТЕЦ.

Просторен и изключително функционален, подготвен за най-приятната част от довършителните работи, а именно обзавеждането.


Намира се на седми и осми (последен) етаж в тухлена сграда с разрешение за ползване от 2012г. Общите части са в много добро състояние.

Сградата има асансьор.

Към апартамента може да се закупи и гараж в сутеренното ниво.


Района е предпочитан, заради уредеността си от гледна точка на транспорт, училища и детски градини, магазини, заведения за хранене, пазар и големи търговски вериги.


БИЛДИНГ БОКС предоставя безплатна консултация и съдействие при финансиране на избрания от Вас имот.


Оферта № 25322

ПОДОБНИ ИМОТИ

ПОДОБНИ
ИМОТИ

Сравняване на списъци

Сравни
Гергана Динова
  • Гергана Динова

Внимание

Академиите в София, Пловдив и Варна се провеждат 3 пъти в годината – в началото на всяка година, на пролет и на есен.

Очаквайте да се свържем с вас, за да се запишете за следващият свободен прозорец.

Най-голямата общност
за имотни инвестиции

7 857 души вече получават достъп до нови,
необявени проекти на занижени цени.