Имоти
Имоти

Продава двустаен апартамент

Реф. №: 25542
София, Овча Купел

Общ преглед

  • 2-стаен
  • Тип имот
  • 1
  • Спалня
  • 90
  • 2026
  • Година на строеж

Допълнителни детайли

  • Номер на имота: 25542
  • Цена: € 226,000
    (442,017.58 лв.)
  • Спалня: 1
  • Площ: 90
  • Статус на имота: Купи

Размер на кредит

| €

2,500 €

500,000 €

Срок на кредит

| месеца

36 месеца

360 месеца

Лихвен процент

| %

2.45%

5%

Месечна вноска

ГПР %

Общо дължима сума

Действия по вписване на ипотека (Еднократно)

€20.45

Такса за проверка и анализ на обезпечението по кредита (Еднократно)

€204.52

Такса план (Месечно)

€6.13

Такса за оценка на обезпечение (Еднократно)

€120.15

Powered by Credia

Стойност на имота

€226000 / 442018 лв.

Ценови диапазон за наем на 2-стаен в Овча Купел, София

€550 - €650

Процент на възвръщаемост:

3.45%

*Цените са ориентировачни. За повече информация се свържете с наш консултант.

Powered by Credia

Имаш интерес?

Свържи се
с нас

Имаш интерес?

Свържи се
с нас

Обадете се 0879900994

Описание

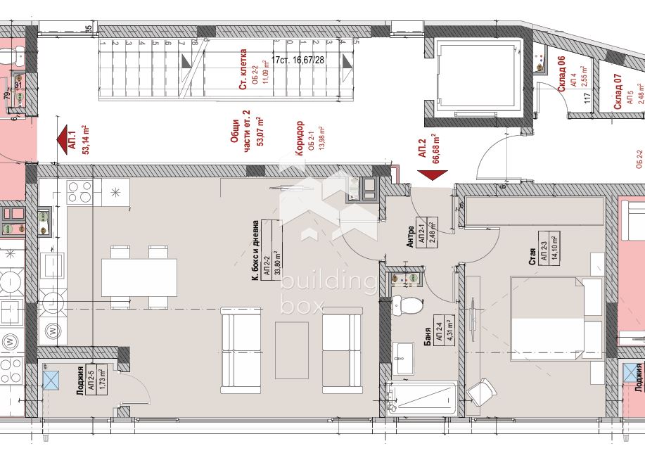
БИЛДИНГ БОКС предлага за продажба двустаен апартамент в кв. Овча Купел.


Апартаментът се състои от: антре, дневна с кухненски бокс, самостоятелна спалня, баня с тоалетна и тераса.

Югозападно изложение.

Имотът се намира на първи надпартерен етаж от общо три.

Към апартамента има склад на партера на сградата с площ от 2,34 кв.м. 


Ще бъде предаден на шпакловка и замазка, като има възможност, за довършителни работи на преференциални цени.


Комплексът е разположен в най- хубавата част на ж.к. Овча Купел, с модерна архитектура, функционални разпределения и отлична локация. Концепцията e осъществена, с мисъл към семейството и за хора, които не биха направили компромис с дома си.

Комплексът се състои от две жилищни сгради с общо 23 апартамента от различна големина и 23 гаража и паркоместа.

На пешеходно разстояние се намират - 66 СУ Филип Станиславов, Хранителен магазин “Фантастико”, Парк Овча Купел, Метростанция „Монтевидео”, Нов Български Университет, Болница „Здравето”, Метростанция „Овча Купел“.

Комплексът предоставя на своите бъдещи жители и техните гости отлични условия за спокоен живот.


Планиран срок за въвеждане в експлоатация на комплекса - Юни месец 2026г.


БИЛДИНГ БОКС предоставя безплатна консултация и съдеиствие при финансиране на избрания от вас имот.

Оферта № 25542

ПОДОБНИ ИМОТИ

ПОДОБНИ
ИМОТИ

Сравняване на списъци

Сравни
Красимир Крумов
  • Красимир Крумов

Внимание

Академиите в София, Пловдив и Варна се провеждат 3 пъти в годината – в началото на всяка година, на пролет и на есен.

Очаквайте да се свържем с вас, за да се запишете за следващият свободен прозорец.

Най-голямата общност
за имотни инвестиции

7 857 души вече получават достъп до нови,
необявени проекти на занижени цени.