Имоти
Имоти

Тристаен апартамент в новострояща се сграда в град Шумен

Реф. №: 27728
Шумен, Добруджански

Общ преглед

  • 3-стаен
  • Тип имот
  • 2
  • Спални
  • 77
  • 2026
  • Година на строеж

Допълнителни детайли

  • Номер на имота: 27728
  • Цена: € 102,000
    (199,494.66 лв.)
  • Спални: 2
  • Площ: 77
  • Статус на имота: Купи

Размер на кредит

| €

2,500 €

500,000 €

Срок на кредит

| месеца

36 месеца

360 месеца

Лихвен процент

| %

2.45%

5%

Месечна вноска

ГПР %

Общо дължима сума

Действия по вписване на ипотека (Еднократно)

€20.45

Такса за проверка и анализ на обезпечението по кредита (Еднократно)

€204.52

Такса план (Месечно)

€6.13

Такса за оценка на обезпечение (Еднократно)

€120.15

Powered by Credia

Стойност на имота

€102000

Няма данни за наемите в района.

Powered by Credia

Имаш интерес?

Свържи се
с нас

Имаш интерес?

Свържи се
с нас

Обадете се 0879900993

Описание

БИЛДИНГ БОКС предлага за продажба тристаен апартамент в новострояща се сграда в град Шумен в кв.Доброджански


 -ЛОКАЦИЯТА:  град Шумен, кв.Доброджански, подрайон Басейна, ул.Иван Рилски . Локацията позволява удобства на живущите, както и възможност за отдаване под наем, благодарение на близостта до:

- новостроящ се басейнов комплекс,

- новостроящ се магазин Лидъл,

- детска площадка пред сградата

- втори корпус на Шуменски, университет,

- няколко основни и средни училища,

- детска градина до сградата.

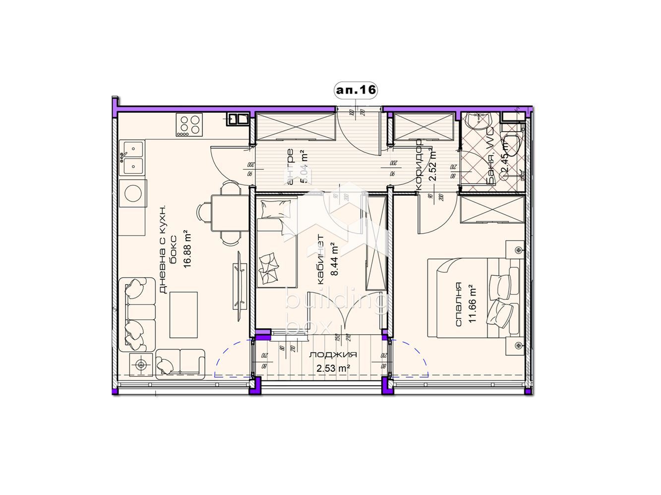
 -РАЗПРЕДЕЛЕНИЕ: Апартаментът се състои от всекидневна с кухненски бокс - 20.15 кв.м., 2 спални – 11.66 кв.м., 8.44 кв.м., 2 бани с тоалетна, коридор, към апартамента има прилежаща изба - 1.44 кв.м.

 -ЕТАЖНОСТ: Етаж 2 от общо 5

 -ОТОПЛЕНИЕ:  Електричество

 -ИЗЛОЖЕНИЕ: Изток/Запад/ Север

 -СТРОИТЕЛСТВО: Тухла

-ПАРКИРАНЕ: В двора на сградата ще има обособени паркоместа - ще се ползват свободно от живущите. 

 -СГРАДА: Сградата е пред Акт 14. Очаква се Акт 16 - началото на 2027 година.

 -ИНВЕСТИТОР: Инвеститорът е показал история на вече завършени имоти, които могат да бъдат разгледани като начин на изпълнение, качество, външен вид и стил.

 

Билдинг Бокс предлага безплатна консултация и съдействие при финансиране на избрания от Вас имот

 Оферта №27728

ПОДОБНИ ИМОТИ

ПОДОБНИ
ИМОТИ

Сравняване на списъци

Сравни
Силвия Георгиева
  • Силвия Георгиева

Внимание

Академиите в София, Пловдив и Варна се провеждат 3 пъти в годината – в началото на всяка година, на пролет и на есен.

Очаквайте да се свържем с вас, за да се запишете за следващият свободен прозорец.

Най-голямата общност
за имотни инвестиции

7 857 души вече получават достъп до нови,
необявени проекти на занижени цени.