Имоти
Имоти

Четиристаен мансарден апартамент в кв. “Христо Смирненски”

Реф. №: 26502
Пловдив, Смирненски

Общ преглед

  • 4-стаен
  • Тип имот
  • 3
  • Спални
  • 143
  • 2024
  • Година на строеж

Допълнителни детайли

  • Номер на имота: 26502
  • Цена: € 285,000
    (557,411.55 лв.)
  • Спални: 3
  • Площ: 143
  • Статус на имота: Купи

Размер на кредит

| €

2,500 €

500,000 €

Срок на кредит

| месеца

36 месеца

360 месеца

Лихвен процент

| %

2.45%

5%

Месечна вноска

ГПР %

Общо дължима сума

Действия по вписване на ипотека (Еднократно)

€20.45

Такса за проверка и анализ на обезпечението по кредита (Еднократно)

€204.52

Такса план (Месечно)

€6.13

Такса за оценка на обезпечение (Еднократно)

€120.15

Powered by Credia

Стойност на имота

€285000

Няма данни за наемите в района.

Powered by Credia

Имаш интерес?

Свържи се
с нас

Имаш интерес?

Свържи се
с нас

Обадете се 0879900984

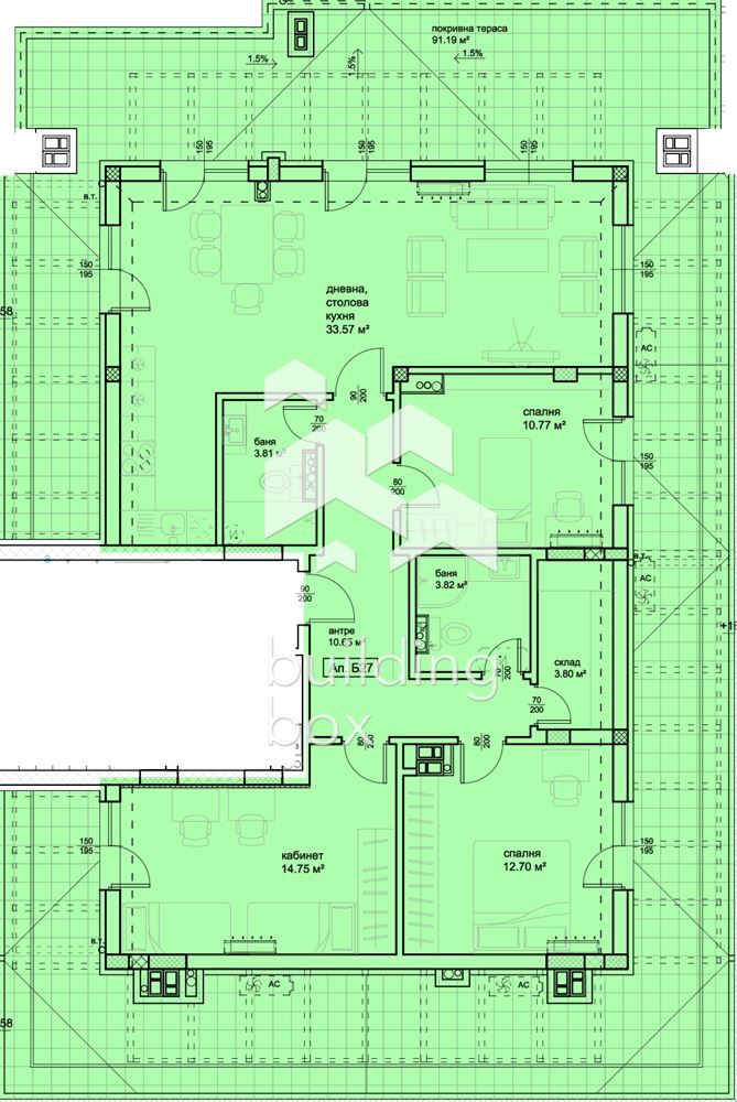
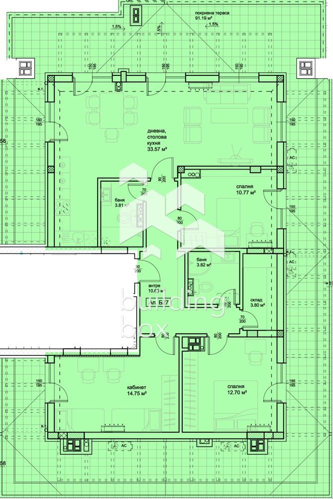
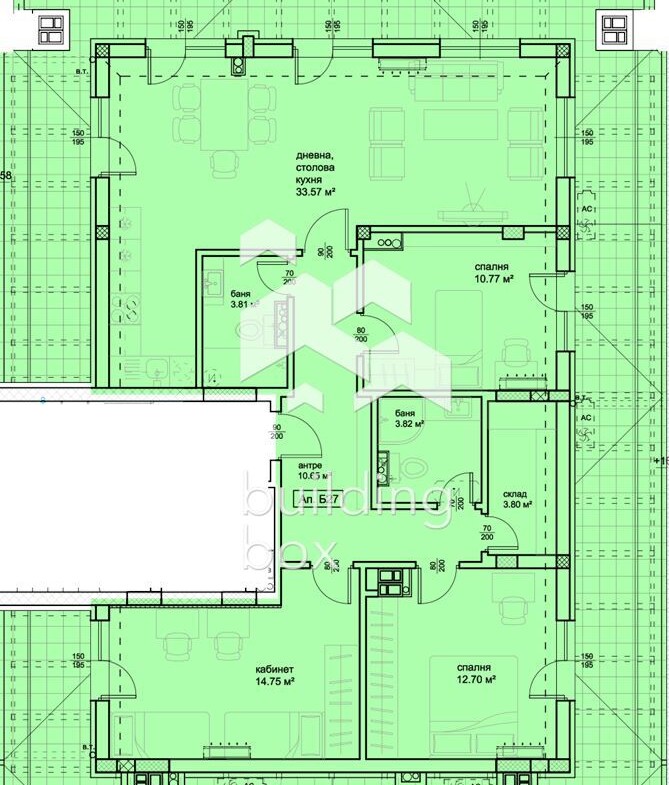
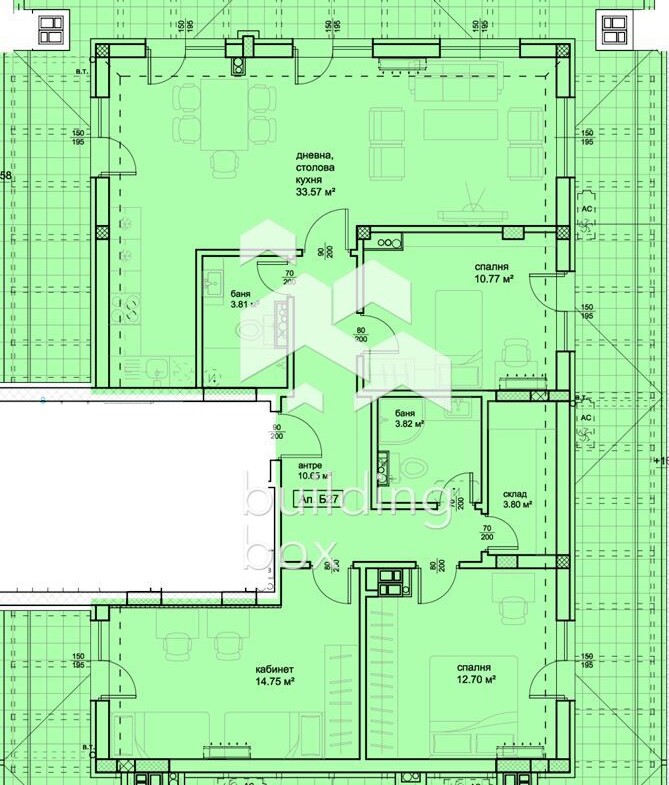
Описание

БИЛДИНГ БОКС представя екслузивно за продажба четиристаен апартамент в кв. Христо Смирненски.


Предимства на имота:

- ЛОКАЦИЯ: Намира се в близост до Гребна база. Районът предлага идеален баланс между спокойствието и удобствата на градския живот, което го прави изключително подходящ за семейства с деца.

- РАЗПРЕДЕЛЕНИЕ: Просторна всекидневна с кухненски кът, три спални, две бани с тоалетни и панорамна тераса, която разкрива почти 360-градусови гледки.

- ПЛОЩ: Апартаментът е с обща площ от 241,16 кв.м.

- ЕТАЖ: 7-ми етаж от общо 7 - единствено жилище на етажа.

- ОТОПЛЕНИЕ: Електричество.

- ИЗЛОЖЕНИЕ: Апартаментът разполага с всички изложения и гарантира слънчева светлина през целия ден.

- ПАРКИРАНЕ: Възможност за закупуване на гараж на цена от 25 000 евро.

- СТРОИТЕЛСТВО: Тухлена сграда с АКТ16 от 2024г.


БИЛДИНГ БОКС предоставя безплатна консултация и съдействие при финансиране на избрания от Вас имот.


Оферта № 26502

ПОДОБНИ ИМОТИ

ПОДОБНИ
ИМОТИ

Сравняване на списъци

Сравни
Петя Кръстева
  • Петя Кръстева

Внимание

Академиите в София, Пловдив и Варна се провеждат 3 пъти в годината – в началото на всяка година, на пролет и на есен.

Очаквайте да се свържем с вас, за да се запишете за следващият свободен прозорец.

Най-голямата общност
за имотни инвестиции

7 857 души вече получават достъп до нови,
необявени проекти на занижени цени.