Имоти
Имоти

Двустаен апартамент в новострояща се сграда

Реф. №: 24549
Варна, Изгрев

Общ преглед

  • 2-стаен
  • Тип имот
  • 2
  • Спални
  • 74
  • 2028
  • Година на строеж

Допълнителни детайли

  • Номер на имота: 24549
  • Цена: € 119,000
    (232,743.77 лв.)
  • Спални: 2
  • Площ: 74
  • Статус на имота: Купи

Размер на кредит

| €

2,500 €

500,000 €

Срок на кредит

| месеца

36 месеца

360 месеца

Лихвен процент

| %

2.45%

5%

Месечна вноска

ГПР %

Общо дължима сума

Действия по вписване на ипотека (Еднократно)

€20.45

Такса за проверка и анализ на обезпечението по кредита (Еднократно)

€204.52

Такса план (Месечно)

€6.13

Такса за оценка на обезпечение (Еднократно)

€120.15

Powered by Credia

Стойност на имота

€119000

Няма данни за наемите в района.

Powered by Credia

Имаш интерес?

Свържи се
с нас

Имаш интерес?

Свържи се
с нас

Обадете се 0879900993

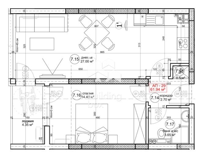
Описание

БИЛДИНГ БОКС предлага за продажба ДВУСТАЕН апартамент с Морска Панорама в новострояща се сграда в кв. Изгрев


– ЛОКАЦИЯ: Сградата се намира кв. Изгрев. В близост са големи хипермаркети, медицински центрове, училища, детски градини, поликлиники. Лесен достъп до градски транспорт.

– РАЗПРЕДЕЛЕНИЕ: Всекидневна с кухненски бокс - 18,83 кв.м., спалня - 13,06 кв.м., баня с тоалетна с перално помещение, входно антре.

– ЕТАЖ: Етаж 6 от общо 10

– ИЗЛОЖЕНИЕ: Североизток

– ОТОПЛЕНИЕ: Електричество.

– ПАРКИРАНЕ: Към имота има възможност да се закупят открити и закрити паркоместа.

– СТРОИТЕЛСТВО: Тухла.



Билдинг Бокс предоставя безплатна консултация и съдействие при финансиране на избрания от Вас имот.


Оферта №24549

ПОДОБНИ ИМОТИ

ПОДОБНИ
ИМОТИ

Сравняване на списъци

Сравни
Силвия Георгиева
  • Силвия Георгиева

Внимание

Академиите в София, Пловдив и Варна се провеждат 3 пъти в годината – в началото на всяка година, на пролет и на есен.

Очаквайте да се свържем с вас, за да се запишете за следващият свободен прозорец.

Най-голямата общност
за имотни инвестиции

7 857 души вече получават достъп до нови,
необявени проекти на занижени цени.