Имоти
Имоти

Тристаен апартамент срещу “Ловен парк” – кв. Витоша

Реф. №: 20837
София, Витоша

Общ преглед

  • 3-стаен
  • Тип имот
  • 2
  • Спални
  • 107
  • 2027
  • Година на строеж

Допълнителни детайли

  • Номер на имота: 20837
  • Цена: € 323,000
    (631,733.09 лв.)
  • Спални: 2
  • Площ: 107
  • Статус на имота: Купи

Размер на кредит

| €

2,500 €

500,000 €

Срок на кредит

| месеца

36 месеца

360 месеца

Лихвен процент

| %

2.45%

5%

Месечна вноска

ГПР %

Общо дължима сума

Действия по вписване на ипотека (Еднократно)

€20.45

Такса за проверка и анализ на обезпечението по кредита (Еднократно)

€204.52

Такса план (Месечно)

€6.13

Такса за оценка на обезпечение (Еднократно)

€120.15

Powered by Credia

Стойност на имота

€323000 / 631734 лв.

Ценови диапазон за наем на 3-стаен в Витоша, София

€850 - €1050

Процент на възвръщаемост:

3.9%

*Цените са ориентировачни. За повече информация се свържете с наш консултант.

Powered by Credia

Имаш интерес?

Свържи се
с нас

Имаш интерес?

Свържи се
с нас

Обадете се 0877734412

Описание

РАЗСРОЧЕНА СХЕМА НА ПЛАЩАНЕ, БЕЗ ОСКЪПЯВАНЕ!


ИЗГРАЖДАНЕ НА ПОДОВО ОТОПЛЕНИЕ В ЦЕНАТА!


БИЛДИНГ БОКС предлага за продажба прекрасен тристаен апартамент, с инвестиционен потенциал, в модерна новострояща се сграда в кв. Витоша.


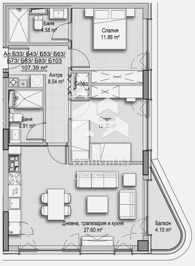
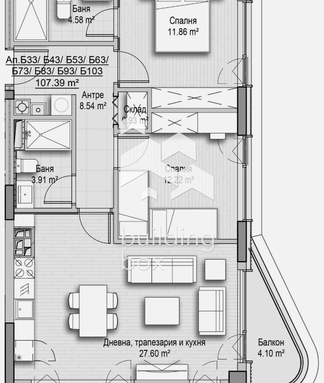
Апартаментът е на 2-ри етаж, с чиста площ 88.96 кв.м. и обща площ 107.39 кв.м. До 17-ти етаж се предлагат апартаменти със същото разпределение, като цената се променя спрямо височината на етажа.


Изложение: ЮГ / ИЗТОК.

На по-високите етаж на юг се открива панорамна гледка към Витоша.


Сградата е на изкопни дейности. АКТ 16 се очаква до края на 2027г.


Отоплението е подово на газ. От 10-ти етаж отоплението е подово с термопомпи.


Имотът включва:

- Всекидневна - 27.40 кв.м

- Спалня + баня с тоалетна - 11.86 кв.м. + 4.58 кв.м.

- Втора спалня - 12.22 кв.м.

- Баня с тоалетна - 3.88 кв.м.

- Балкон - 4.10 кв.м.

- Антре - 8.54 кв.м.


Паркиране: Към имота може да се закупят подземни паркоместа и гаражи.


ПРЕДИМСТВА НА ПРОЕКТА:

Сградата е разположена в един от най-атрактивните и бързо развиващи се райони на града, осигуряващ бърз достъп до основните транспортни артерии на столицата, както и непосредствена близост до автобусни спирки, детски градини и училища и Зоопарк София'. Разположена на ул. “Симеоновско шосе” 12 - между булевардите Симеоновско шосе“ и Филип Кутев“. Локацията предлага възможност за бързо придвижване до центъра на града, но същевременно позволява уединение и спокойствие, благодарение на близостта си до Ловен парк, Зоопарк София и Витоша.


На ниво партер се намират 4 търговски помещения, предлагащи всичко необходимо за удобството на живущите в сградата. На покрива на сградата ще има фотоволтаична електроцентрала, която ще произвежда повече от 110 000 кВтч чиста енергия на година, което ще покрива напълно потреблението на всички енергоконсуматори в общите части на комплекса.


Цената е без ДДС.


БИЛДИНГ БОКС предоставя безплатна консултация и съдействие при финансиране на избрания от Вас имот.

Оферта № 20837

ПОДОБНИ ИМОТИ

ПОДОБНИ
ИМОТИ

Сравняване на списъци

Сравни
Антонио Динев
  • Антонио Динев

Внимание

Академиите в София, Пловдив и Варна се провеждат 3 пъти в годината – в началото на всяка година, на пролет и на есен.

Очаквайте да се свържем с вас, за да се запишете за следващият свободен прозорец.

Най-голямата общност
за имотни инвестиции

7 857 души вече получават достъп до нови,
необявени проекти на занижени цени.