Имоти
Имоти

Тристаен апартамент в сграда пред Акт 15

Реф. №: 16785
Варна, Бриз

Общ преглед

  • 3-стаен
  • Тип имот
  • 2
  • Спални
  • 144
  • 2025
  • Година на строеж

Допълнителни детайли

  • Номер на имота: 16785
  • Цена: € 280,500
    (548,610.32 лв.)
  • Спални: 2
  • Площ: 144
  • Статус на имота: Купи

Размер на кредит

| €

2,500 €

500,000 €

Срок на кредит

| месеца

36 месеца

360 месеца

Лихвен процент

| %

2.45%

5%

Месечна вноска

ГПР %

Общо дължима сума

Действия по вписване на ипотека (Еднократно)

€20.45

Такса за проверка и анализ на обезпечението по кредита (Еднократно)

€204.52

Такса план (Месечно)

€6.13

Такса за оценка на обезпечение (Еднократно)

€120.15

Powered by Credia

Стойност на имота

€280500 / 548611 лв.

Ценови диапазон за наем на 3-стаен в Бриз, Варна

€600 - €700

Процент на възвръщаемост:

2.99%

*Цените са ориентировачни. За повече информация се свържете с наш консултант.

Powered by Credia

Имаш интерес?

Свържи се
с нас

Имаш интерес?

Свържи се
с нас

Обадете се 0879900993

Описание

Сградата предлага уют, спокойствие и морска гледка от първия етаж!


БИЛДИНГ БОКС предлага тристаен апартамент с двор в жилищна сграда с модерна архитектура пред Акт 15.

  

ЛОКАЦИЯ: Бутиковата жилищна сграда се намира във високата и тиха част на квартал Бриз. Локация с бърз достъп до главен булевард, спокойствие и зеленина в квартал с модерни нови сгради.

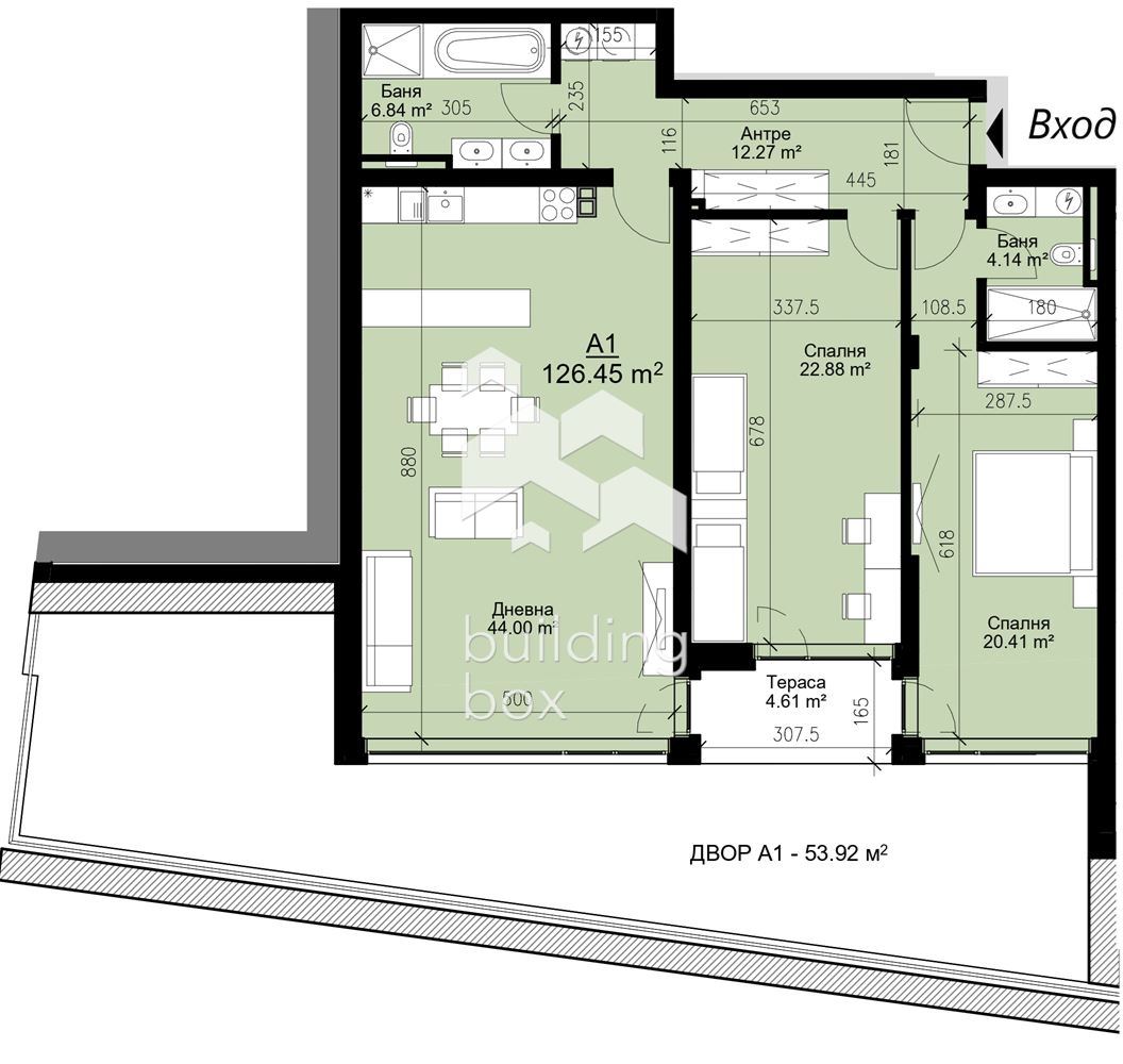
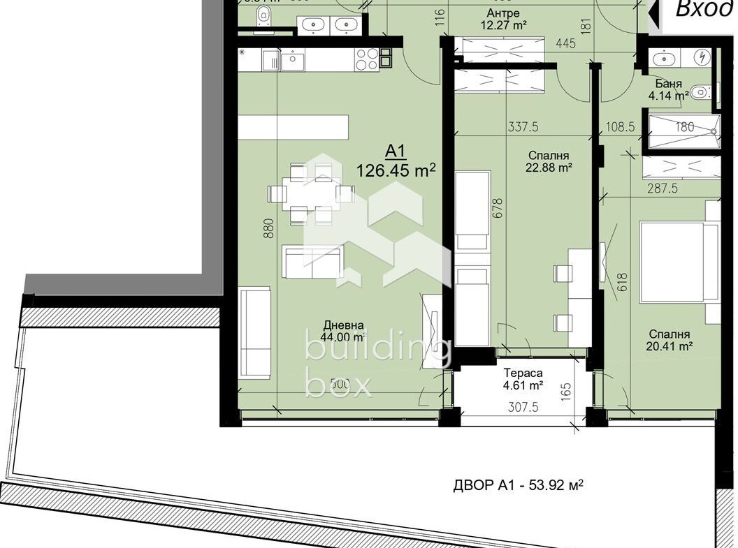
РАЗПРЕДЕЛЕНИЕ: Входно антре, всекидневна с кухненски кът, две спални, две санитарни помещения, тераса, двор и избено помещение.

ЕТАЖНОСТ: Етаж 1 от 5

ИЗЛОЖЕНИЕ: Юг-Югозапад

ОТОПЛЕНИЕ: Електричество

ЕТАП НА СТРОИТЕЛСТВО: Сградата е пред Акт 15

ПАРКИРАНЕ: Налични са подземни и надземни паркоместа.

СГРАДА: Качествено строителство, апартаментите разполагат с функционални разпределения с всекидневни и спални с голяма площ, френски прозорци и стъклени парапети за максимална светлина и простор.

От инвеститор с доказана история от вече завършени сгради, които могат да бъдат разгледани като начин на изпълнение, качество и външен вид.


Билдинг Бокс предоставя безплатна консултация и съдействие при финансиране на избрания от Вас имот.


Оферта № 16785

ПОДОБНИ ИМОТИ

ПОДОБНИ
ИМОТИ

Сравняване на списъци

Сравни
Наталия Георгиева
  • Наталия Георгиева

Внимание

Академиите в София, Пловдив и Варна се провеждат 3 пъти в годината – в началото на всяка година, на пролет и на есен.

Очаквайте да се свържем с вас, за да се запишете за следващият свободен прозорец.

Най-голямата общност
за имотни инвестиции

7 857 души вече получават достъп до нови,
необявени проекти на занижени цени.