Имоти
Имоти

Тристаен апартамент

Реф. №: 22745
Варна, Изгрев

Общ преглед

  • 3-стаен
  • Тип имот
  • 2
  • Спални
  • 86
  • 2028
  • Година на строеж

Допълнителни детайли

  • Номер на имота: 22745
  • Цена: € 148,000
    (289,462.84 лв.)
  • Спални: 2
  • Площ: 86
  • Статус на имота: Купи

Размер на кредит

| €

2,500 €

500,000 €

Срок на кредит

| месеца

36 месеца

360 месеца

Лихвен процент

| %

2.45%

5%

Месечна вноска

ГПР %

Общо дължима сума

Действия по вписване на ипотека (Еднократно)

€20.45

Такса за проверка и анализ на обезпечението по кредита (Еднократно)

€204.52

Такса план (Месечно)

€6.13

Такса за оценка на обезпечение (Еднократно)

€120.15

Powered by Credia

Стойност на имота

€148000 / 289463 лв.

Няма данни за наемите в района.

Powered by Credia

Имаш интерес?

Свържи се
с нас

Имаш интерес?

Свържи се
с нас

Обадете се 0879900993

Описание


БИЛДИНГ БОКС предлага за продажба ТРИСТАЕН апартамент в новострояща се сграда в кв. Изгрев

– ЛОКАЦИЯ: Сградата се намира кв. Изгрев. В близост са големи хипермаркети, медицински центрове, училища, детски градини, поликлиники. Лесен достъп до градски транспорт.

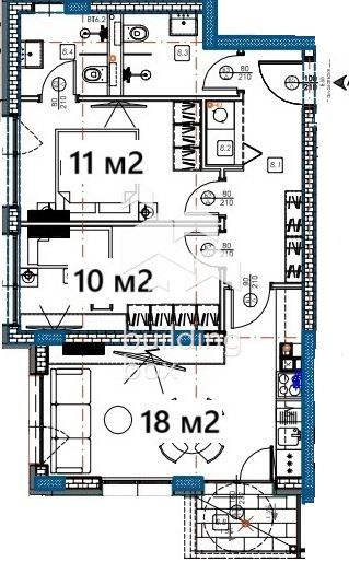
– РАЗПРЕДЕЛЕНИЕ: Всекидневна с кухненски бокс - 18 кв.м., две спални - 11 кв.м. и 10 кв.м., 2 бани с тоалетна, складово помещение и входно антре.

– ЕТАЖ: Етаж 2 от общо 10

– ИЗЛОЖЕНИЕ: Югозапад

– ОТОПЛЕНИЕ: Електричество.

– ПАРКИРАНЕ: Към имота има възможност да се закупят открити и закрити паркоместа.

– СТРОИТЕЛСТВО: Тухла.


Билдинг Бокс предоставя безплатна консултация и съдействие при финансиране на избрания от Вас имот.

Оферта №22745

ПОДОБНИ ИМОТИ

ПОДОБНИ
ИМОТИ

Сравняване на списъци

Сравни
Силвия Георгиева
  • Силвия Георгиева

Внимание

Академиите в София, Пловдив и Варна се провеждат 3 пъти в годината – в началото на всяка година, на пролет и на есен.

Очаквайте да се свържем с вас, за да се запишете за следващият свободен прозорец.

Най-голямата общност
за имотни инвестиции

7 857 души вече получават достъп до нови,
необявени проекти на занижени цени.