Имоти
Имоти

Тристаен функционален апартамент с две бани в кв.Изгрев

Реф. №: 10146
Варна, Изгрев

Общ преглед

  • 3-стаен
  • Тип имот
  • 102
  • 2026
  • Година на строеж

Допълнителни детайли

  • Номер на имота: 10146
  • Цена: € 217,727
    (425,837.00 лв.)
  • Площ: 102
  • Статус на имота: Купи

Размер на кредит

| €

2,500 €

500,000 €

Срок на кредит

| месеца

36 месеца

360 месеца

Лихвен процент

| %

2.45%

5%

Месечна вноска

ГПР %

Общо дължима сума

Действия по вписване на ипотека (Еднократно)

€20.45

Такса за проверка и анализ на обезпечението по кредита (Еднократно)

€204.52

Такса план (Месечно)

€6.13

Такса за оценка на обезпечение (Еднократно)

€120.15

Powered by Credia

Стойност на имота

€217727 / 425837 лв.

Няма данни за наемите в района.

Powered by Credia

Имаш интерес?

Свържи се
с нас

Имаш интерес?

Свържи се
с нас

Обадете се 0879900993

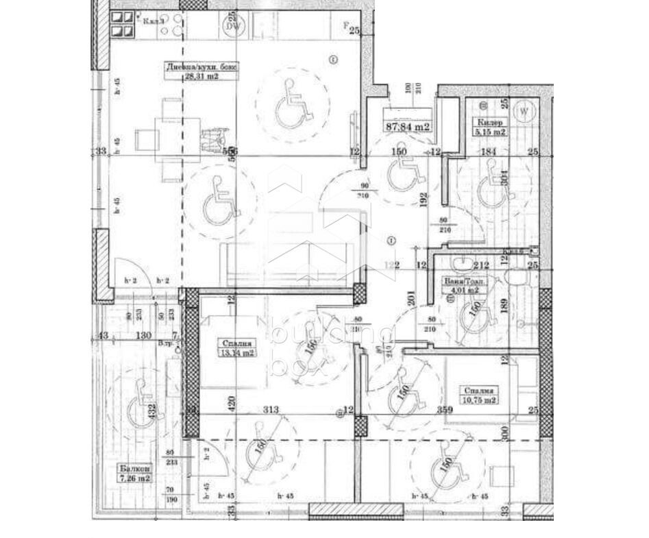
Описание


БИЛДИНГ БОКС продава тристаен апартамент в новострояща се сграда в близост до УМБАЛ Св.Марина.

Предимства на имота :

  • ЛОКАЦИЯ: Сградата е разположена на 350 метра от бул.Христо Смирненски, локация гарантираща комуникативност и спокойствие едновременно, далеч от шумните улици.
  • РАЗПРЕДЕЛЕНИЕ: Жилището се състои от дневна стая с кухненски бокс, две спални, две санитарни помещения, килер, входно антре и тераса.
  • ЕТАЖНОСТ: Жилището е ситуирано на етаж 5 от общо 11.
  • ОТОПЛЕНИЕ: Електричество
  • ИЗЛОЖЕНИЕ: Юг/Запад
  • ПАРКИРАНЕ: На полуподземното ниво са планирани 22 паркоместа, а допълнително в сутерена има още 32 паркоместа.
  • СГРАДА: Сградата е удобно разположена, така че всички жилища да разполагат с достатъчно пространство и светлина. Проектирани са апартаменти с правилни форми и максимално функционално разпределение на помещенията. Предвижда се изчистена красива фасада изпълнена с висококачествени материали.
  • ЕТАП НА СТРОИТЕЛСТВО: Сградата е с Акт 14.
  • СТРОИТЕЛ: Изпълнител е строителна фирма с проекти с РЗП общо над 33 500 кв.м., доказана на строителния пазар с портфолио от над 15 обекта, които могат да бъдат разгледани по всяко време като стил, качество и начин на изпълнение.


Билдинг Бокс предоставя безплатна консултация и съдействие при финансиране на избрания от Вас имот.

Оферта № 10146

ПОДОБНИ ИМОТИ

ПОДОБНИ
ИМОТИ

Сравняване на списъци

Сравни
Вивиан Дончева
  • Вивиан Дончева

Внимание

Академиите в София, Пловдив и Варна се провеждат 3 пъти в годината – в началото на всяка година, на пролет и на есен.

Очаквайте да се свържем с вас, за да се запишете за следващият свободен прозорец.

Най-голямата общност
за имотни инвестиции

7 857 души вече получават достъп до нови,
необявени проекти на занижени цени.